
Trier par
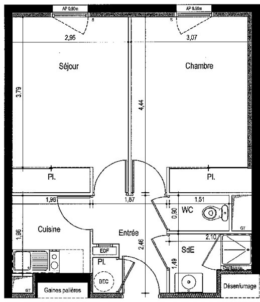
À louer – Appartement T2 bis meublé de 53,36 m² – Disponible à partir du 15 novembre
Situé au 5ᵉ étage avec ascenseur...
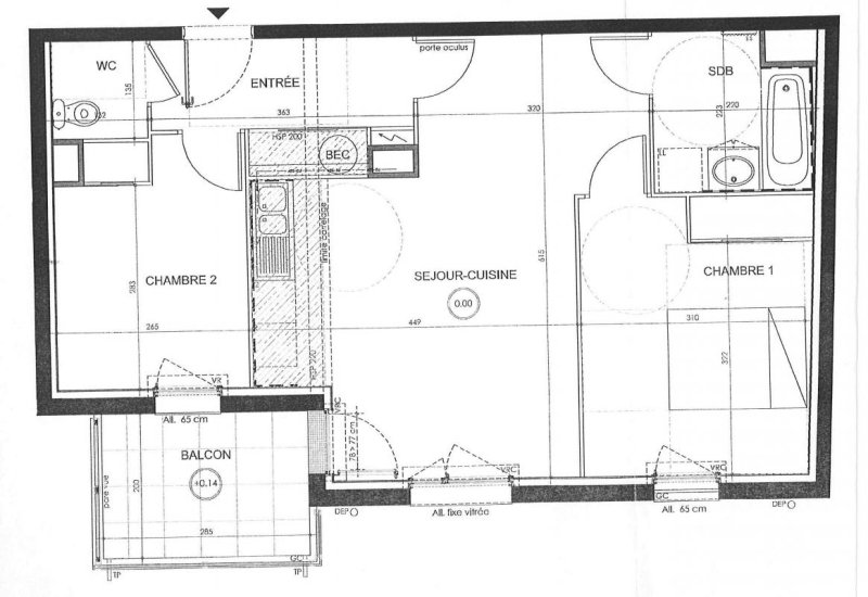
QUARTIER BEAUJOIRE – Local professionnel en rez-de-chaussée comprenant : une belle entrée avec placards, un premier bureau...
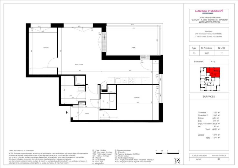
À louer – T4 de 74,80 m² avec cave et parking – Disponible le 23 septembre – Colocation acceptée
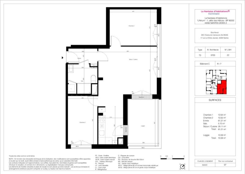
NOUVEAUTE - BEAUJOIRE: Appartement récent 4 pièces en duplex d'une surface habitable de 82.95m². Comprenant une entrée, 2 chambres dont une avec...