• Accueil
  • Trouver un professionnel agréé
  • Nos évènements
  • Nos Formations
  • Nos partenaires
  • Assistance juridique
  • Bourse de l'emploi
Fnaim-44
ADHÉRER À LA FNAIM 44 ACCÈS ADHÉRENT
  1. Accueil
  2. Bouaye
  3. Vente
  4. Local Commercial
< Retour

Local commercial

Bouaye - 44830

567 210 €
Descriptif du bien
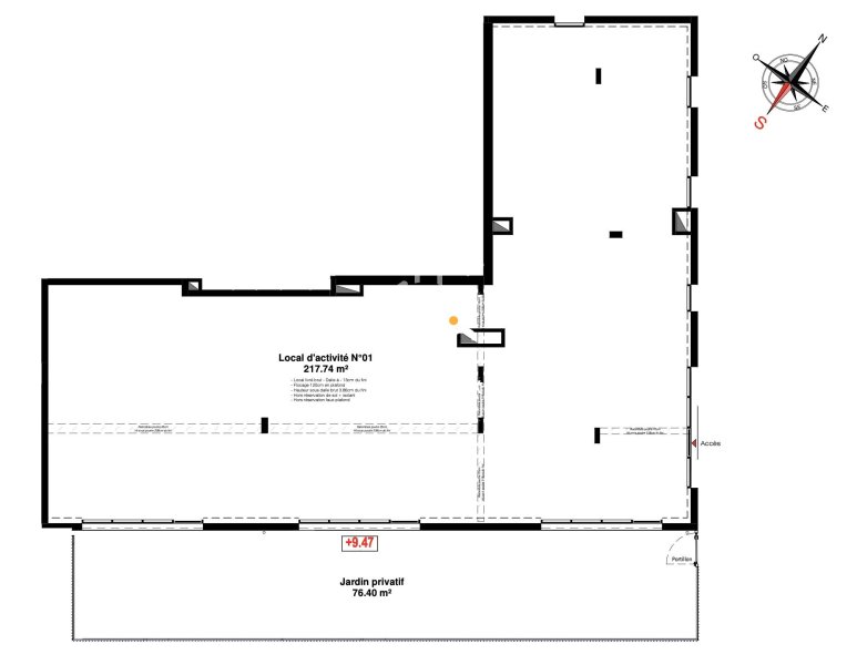
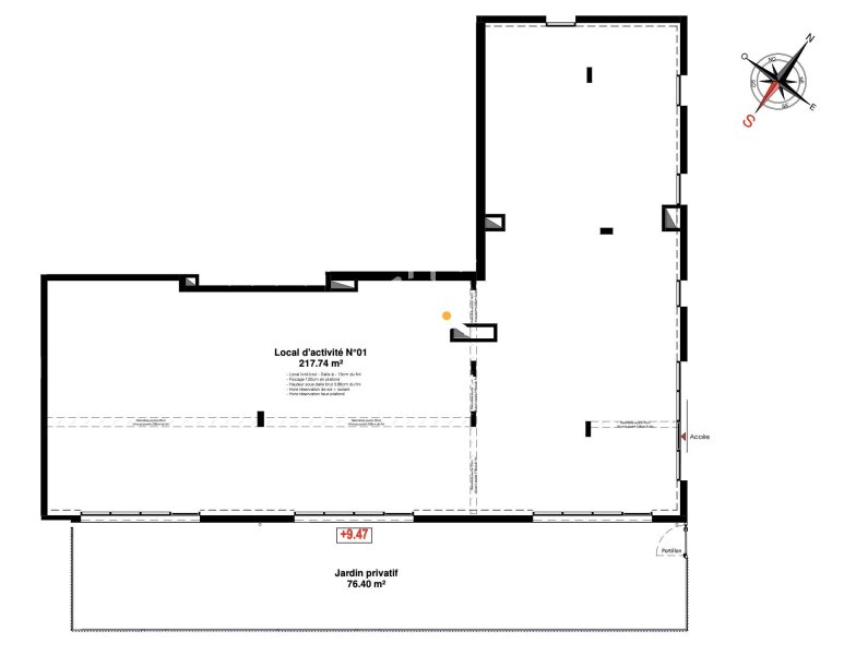
NANTES SUD LOIRE Commune de BOUAYE A vendre local commercial neuf de 216 m2 avec jardin privatif de 76,40m2 Pour accueillir votre clientèle 9 places de parking privatives complétent le local. La cellule est configurée pour pouvoir accueillir une activité de petite enfance mais peut également convenir à d'autres activités. L'emplacement est idéal entre le centre-ville et la gare SNCF Nantes et à 20 minutes en train. La cellule sera livrée brut de béton, fourreaux en attente, huisserie posée. ERP aux normes d'accès PMR Contactez nous pour savoir si la destination du local convient à votre activité ou pour toute autre question. Conditions de vente : Prix net vendeur 540 200 € HT Honoraires de commercialisation 5% HT du prix net vendeur HT soit 27 000 € HT à la charge de l'acquéreur Honoraires inclus de 5% HT à la charge de l'acquéreur. Prix hors honoraires 540 200 € HT. Non soumis au DPE. Les informations sur les risques auxquels ce bien est exposé sont disponibles sur le site Géorisques : georisques.gouv.fr. Votre conseiller LOCAUX-BUREAUX-COMMERCES : Nicolas FOULON Agent commercial (Entreprise individuelle) RSAC ADC 4401 2025 000 000 873 RCP RCACO-20-016231 GALIAN SMA BTP. LOCAUX-BUREAUX-COMMERCES 02 55 07 86 35
Détails du bien
  • Code postal 44830

Diagnostic de
performances énergétiques

DPE
GES
Ce bien est proposé par
LOCAUX BUREAUX COMMERCES
LOCAUX BUREAUX COMMERCES
Voir les biens de l'agence
2 Rue Robert Schuman
44400 Reze
02 55 07 86 35
accueil@groupelbc.com
/www.locaux-bureaux-commerces.fr/
Nos outils
Nous contacter pour ce bien

* champs obligatoire

Les informations communiquées sont destinées à "Fnaim Loire Atlantique" éditrice de ce site. Vous bénéficiez d'un droit d'accès, de modification, de rectification et de suppression de vos données personnelles (Loi n°2004-575 du 21 juin 2004 pour la confiance dans l'économie numérique). Pour les exercer, adressez vous à l’adresse de l’Editeur.

Partager ce
bien

Partager ce
bien

* champs obligatoire

Les informations communiquées sont destinées à "Fnaim Loire Atlantique" éditrice de ce site. Vous bénéficiez d'un droit d'accès, de modification, de rectification et de suppression de vos données personnelles (Loi n°2004-575 du 21 juin 2004 pour la confiance dans l'économie numérique). Pour les exercer, adressez vous à l’adresse de l’Editeur.

Calculatrice financière
Mensualités :

* Champs obligatoires

Ces biens
peuvent vous intéresser

  • Location
    Local commercial
    44000 nantes Centre
  • Vente
    Local commercial
    44300 nantes Est
    212 000 €
  • Location
    Local commercial
    44600 st nazaire
    4 100 €
FNAIM

FNAIM Loire Atlantique 3 bis rue Lorette de la Refoulais - 44000 NANTES 02.51.84.22.77 contact@fnaim44.fr

FNAIM 44 © 2026 | Tous droits réservés |

  • Plan du site
  • Mentions légales
  • Partenaires
  • Admin
  • Contact
Réalisé par

Comme beaucoup, notre site utilise les cookies

On aimerait vous accompagner pendant votre visite. En poursuivant, vous acceptez l'utilisation des cookies par ce site, afin de vous proposer des contenus adaptés et réaliser des statistiques !

Paramétrer

Cookies fonctionnelsCes cookies sont indispensables à la navigation sur le site, pour vous garantir un fonctionnement optimal. Ils ne peuvent donc pas être désactivés.

Statistiques de visitesPour améliorer votre expérience, on a besoin de savoir ce qui vous intéresse !
Les données récoltées sont anonymisées.

?

Google Analytics

Annonces personnaliséesOn garde le contact ? Ces cookies nous permettent de vous proposer des contenus publicitaires adaptés à vos centres d'intérêts.

?

Google Ads

?

Facebook Pixel

?

Youtube

En savoir plus

Nous utilisons des cookies pour nous permettre de mieux comprendre comment le site est utilisé. En continuant à utiliser ce site, vous acceptez notre politique de confidentialité. En savoir plus