• Accueil
  • Trouver un professionnel agréé
  • Nos évènements
  • Nos Formations
  • Nos partenaires
  • Assistance juridique
  • Bourse de l'emploi
Fnaim-44
ADHÉRER À LA FNAIM 44 ACCÈS ADHÉRENT
  1. Accueil
  2. Le Bignon
  3. Vente
  4. Local Commercial
< Retour

Local commercial

Le Bignon - 44140

592 252 €
Descriptif du bien
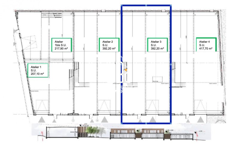
Découvrez ce local d'activité neuf d'une superficie de 392,20 m² environ, situé dans un village d'entreprises au Bignon, à proximité immédiate de Nantes et des principales voies de communication. Cet espace polyvalent et spacieux est parfaitement adapté pour donner vie à vos projets professionnels. Conçu pour répondre à vos besoins, cet espace offre 303,40 m² dédiés au stockage, complétés par une mezzanine de 88,80 m² en plancher collaborant, pouvant supporter une charge de 250kg/m² (escalier et garde-corps non compris) et une hauteur sous charpente, variant entre 7,11 m et 7,54 m offrant une flexibilité d'aménagement selon vos besoins spécifiques. Vous disposez également de 5 places de stationnement privatives. Livré brut de béton, fluides en attente, ce local vous offre une toile vierge pour exprimer votre vision. Le raccordement électrique, comprenant un compteur, des prises électriques et un éclairage LED, est en place, vous permettant ainsi une installation aisée. Les huisseries et la porte sectionnelle de 3,43 mètres X 3 mètres seront posées. Pour garantir votre sécurité et celle de vos biens, le site sera équipé de clôtures rigides et d'un portail coulissant motorisé. Les parkings sont pré-équipés pour l'installation de bornes électriques, répondant ainsi aux besoins croissants en mobilité électrique. Conforme aux normes RT2020, ce local assure une performance énergétique optimale. Le Bignon, votre pôle stratégique d'activité au sud de Nantes, offre un cadre dynamique et accessible. Grâce à sa proximité avec l'autoroute A83 et l'aéroport Nantes Atlantique, ainsi que sa position à quelques minutes du périphérique porte des Sorinières, ce village d'entreprises constitue un choix judicieux pour concilier l'effervescence urbaine de Nantes avec un environnement paisible et verdoyant. Prix de vente HT : 564 050 € + Honoraires charge acquéreur 5% HT du prix de vente + TVA 20% Pour plus d'informations contactez-nous au 02 55 07 86 35 Honoraires inclus de 5% HT à la charge de l'acquéreur. Prix hors honoraires 564 050 € HT. Non soumis au DPE. Les informations sur les risques auxquels ce bien est exposé sont disponibles sur le site Géorisques : georisques.gouv.fr. . LOCAUX-BUREAUX-COMMERCES 02 55 07 86 35
Détails du bien
  • Code postal 44140

Diagnostic de
performances énergétiques

DPE
GES
Ce bien est proposé par
LOCAUX BUREAUX COMMERCES
LOCAUX BUREAUX COMMERCES
Voir les biens de l'agence
2 Rue Robert Schuman
44400 Reze
02 55 07 86 35
accueil@groupelbc.com
/www.locaux-bureaux-commerces.fr/
Nos outils
Nous contacter pour ce bien

* champs obligatoire

Les informations communiquées sont destinées à "Fnaim Loire Atlantique" éditrice de ce site. Vous bénéficiez d'un droit d'accès, de modification, de rectification et de suppression de vos données personnelles (Loi n°2004-575 du 21 juin 2004 pour la confiance dans l'économie numérique). Pour les exercer, adressez vous à l’adresse de l’Editeur.

Partager ce
bien

Partager ce
bien

* champs obligatoire

Les informations communiquées sont destinées à "Fnaim Loire Atlantique" éditrice de ce site. Vous bénéficiez d'un droit d'accès, de modification, de rectification et de suppression de vos données personnelles (Loi n°2004-575 du 21 juin 2004 pour la confiance dans l'économie numérique). Pour les exercer, adressez vous à l’adresse de l’Editeur.

Calculatrice financière
Mensualités :

* Champs obligatoires

Ces biens
peuvent vous intéresser

  • Vente
    Local commercial
    44120 vertou
    58 000 €
  • Vente
    Local commercial
    44120 vertou
    377 000 €
  • Vente
    Local commercial
    44120 vertou
    181 500 €
FNAIM

FNAIM Loire Atlantique 3 bis rue Lorette de la Refoulais - 44000 NANTES 02.51.84.22.77 contact@fnaim44.fr

FNAIM 44 © 2026 | Tous droits réservés |

  • Plan du site
  • Mentions légales
  • Partenaires
  • Admin
  • Contact
Réalisé par

Comme beaucoup, notre site utilise les cookies

On aimerait vous accompagner pendant votre visite. En poursuivant, vous acceptez l'utilisation des cookies par ce site, afin de vous proposer des contenus adaptés et réaliser des statistiques !

Paramétrer

Cookies fonctionnelsCes cookies sont indispensables à la navigation sur le site, pour vous garantir un fonctionnement optimal. Ils ne peuvent donc pas être désactivés.

Statistiques de visitesPour améliorer votre expérience, on a besoin de savoir ce qui vous intéresse !
Les données récoltées sont anonymisées.

?

Google Analytics

Annonces personnaliséesOn garde le contact ? Ces cookies nous permettent de vous proposer des contenus publicitaires adaptés à vos centres d'intérêts.

?

Google Ads

?

Facebook Pixel

?

Youtube

En savoir plus

Nous utilisons des cookies pour nous permettre de mieux comprendre comment le site est utilisé. En continuant à utiliser ce site, vous acceptez notre politique de confidentialité. En savoir plus