• Accueil
  • Trouver un professionnel agréé
  • Nos évènements
  • Nos Formations
  • Nos partenaires
  • Assistance juridique
  • Bourse de l'emploi
Fnaim-44
ADHÉRER À LA FNAIM 44 ACCÈS ADHÉRENT
  1. Accueil
  2. Le Bignon
  3. Vente
  4. Local Commercial
< Retour

Local commercial

Le Bignon - 44140

349 912 €
Descriptif du bien
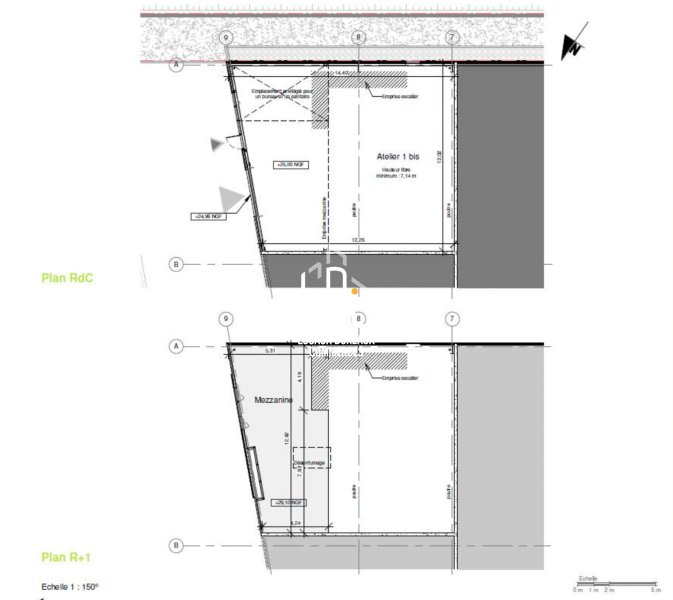
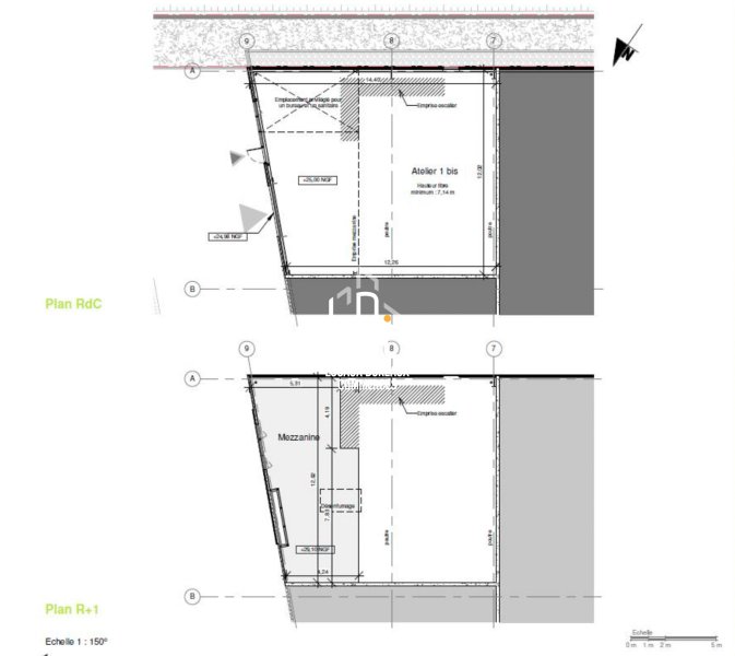
Village d'entreprises LE BIGNON, au Sud de Nantes : Local d'activité neuf d'environ 217,90 m² comprenant une surface de stockage de 160,20 m² et une mezzanine de 57,70 m² en plancher collaborant, pouvant supporter une charge de 250kg/m² (escalier et garde-corps non compris) et disposant de 3 stationnements privatifs. Livré brut de béton, le local est équipé d'huisseries et d'une porte sectionnelle de 3,43 X 3 mètres. Le raccordement électrique, incluant un compteur, des prises électriques, et un éclairage LED, est en place. Les fluides en attente sont prêts à être connectés. La hauteur libre sous charpente est de 7,11 m en bas de pente et de 7,54 m au point haut, offrant ainsi un environnement spacieux et modulables selon vos besoins. Le site sera équipé de clôtures rigides et d'un portail coulissant motorisé. Les parkings seront précâblés pour l'installation de bornes électriques. Conforme aux normes RT2020, garantissant une performance énergétique optimale, cet espace est idéal pour les entreprises qui recherchent un environnement spacieux, modulable et performant. Il est situé dans un environnement dynamique et accessible, à proximité de Nantes et des grands axes routiers. Prix de vente HT : 333 250 € + Honoraires charge acquéreur 5 % HT du prix de vente + TVA 20%. Pour plus d'informations contactez-nous au 02 55 07 86 35 Honoraires inclus de 5% HT à la charge de l'acquéreur. Prix hors honoraires 333 250 € HT. Non soumis au DPE. Les informations sur les risques auxquels ce bien est exposé sont disponibles sur le site Géorisques : georisques.gouv.fr. . LOCAUX-BUREAUX-COMMERCES 02 55 07 86 35
Détails du bien
  • Code postal 44140

Diagnostic de
performances énergétiques

DPE
GES
Ce bien est proposé par
LOCAUX BUREAUX COMMERCES
LOCAUX BUREAUX COMMERCES
Voir les biens de l'agence
2 Rue Robert Schuman
44400 Reze
02 55 07 86 35
accueil@groupelbc.com
/www.locaux-bureaux-commerces.fr/
Nos outils
Nous contacter pour ce bien

* champs obligatoire

Les informations communiquées sont destinées à "Fnaim Loire Atlantique" éditrice de ce site. Vous bénéficiez d'un droit d'accès, de modification, de rectification et de suppression de vos données personnelles (Loi n°2004-575 du 21 juin 2004 pour la confiance dans l'économie numérique). Pour les exercer, adressez vous à l’adresse de l’Editeur.

Partager ce
bien

Partager ce
bien

* champs obligatoire

Les informations communiquées sont destinées à "Fnaim Loire Atlantique" éditrice de ce site. Vous bénéficiez d'un droit d'accès, de modification, de rectification et de suppression de vos données personnelles (Loi n°2004-575 du 21 juin 2004 pour la confiance dans l'économie numérique). Pour les exercer, adressez vous à l’adresse de l’Editeur.

Calculatrice financière
Mensualités :

* Champs obligatoires

Ces biens
peuvent vous intéresser

  • Location
    Local commercial
    44000 nantes Centre
  • Vente
    Local commercial
    44120 vertou
    509 000 €
  • Vente
    Local commercial
    44120 vertou
    728 000 €
FNAIM

FNAIM Loire Atlantique 3 bis rue Lorette de la Refoulais - 44000 NANTES 02.51.84.22.77 contact@fnaim44.fr

FNAIM 44 © 2026 | Tous droits réservés |

  • Plan du site
  • Mentions légales
  • Partenaires
  • Admin
  • Contact
Réalisé par

Comme beaucoup, notre site utilise les cookies

On aimerait vous accompagner pendant votre visite. En poursuivant, vous acceptez l'utilisation des cookies par ce site, afin de vous proposer des contenus adaptés et réaliser des statistiques !

Paramétrer

Cookies fonctionnelsCes cookies sont indispensables à la navigation sur le site, pour vous garantir un fonctionnement optimal. Ils ne peuvent donc pas être désactivés.

Statistiques de visitesPour améliorer votre expérience, on a besoin de savoir ce qui vous intéresse !
Les données récoltées sont anonymisées.

?

Google Analytics

Annonces personnaliséesOn garde le contact ? Ces cookies nous permettent de vous proposer des contenus publicitaires adaptés à vos centres d'intérêts.

?

Google Ads

?

Facebook Pixel

?

Youtube

En savoir plus

Nous utilisons des cookies pour nous permettre de mieux comprendre comment le site est utilisé. En continuant à utiliser ce site, vous acceptez notre politique de confidentialité. En savoir plus