• Accueil
  • Trouver un professionnel agréé
  • Nos évènements
  • Nos Formations
  • Nos partenaires
  • Assistance juridique
  • Bourse de l'emploi
Fnaim-44
ADHÉRER À LA FNAIM 44 ACCÈS ADHÉRENT
  1. Accueil
  2. Ste Pazanne
  3. Vente
  4. Terrain
  5. 369m²
< Retour

Terrain
369 m²

Ste Pazanne - 44680

107 000 €
Descriptif du bien
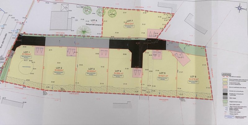
Petit LOTISSEMENT de 7 Lots dans un bel environnement pour votre futur projet de construction sur un terrain à bâtir viabilisé de 369 M² (LOT4) idéalement situé (maison médicale, cabinet dentaire, commerces, écoles et à seulement 5 minutes de la gare à pied) sur la commune de SAINTE PAZANNE entre NANTES et PORNIC. Libre de constructeur pour votre futur projet de construction d'une maison de plain pied ou R+1 , terrain viabilisé (eau, électricité, télécom, assainissement collectif ) Prix de vente : 107 000 euros honoraires à la charge du vendeur Pour visiter et vous accompagner dans votre projet, contacter Patrice VASSEUX au 06-51-35-24-61 ou par mail: p.vasseux@proprietes-privees.com Selon l'article L.561.5 du Code Monétaire et Financier, pour l'organisation de la visite, la présentation d'une pièce d'identité vous sera demandée. Cette présente annonce a été rédigée sous la responsabilité éditoriale de Patrice VASSEUX agissant sous le statut d'agent commercial immatriculé au RSAC NANTES2016AC00022 auprès de la SAS PROPRIETES PRIVEES, au capital de 44 920 euros- ZAC LE CHÊNE FERRÉ - 44 ALLÉE DES CINQ CONTINENTS 44120 VERTOU; SIRET 487 624 777 00040, RCS Nantes. Carte professionnelle Transactions sur immeubles et fonds de commerce (T) et Gestion immobilière (G) n° CPI 4401 2016 000 010 388 délivrée par la CCI Nantes-Saint Nazaire. Compte séquestre n° 30932508467 BPA SAINT-SEBASTIEN-SUR-LOIRE (44230) ; Garantie GALIAN-SMABTP - 89 rue de la boétie, 75008 PARIS - n° 28137 J pour 2 000 000 euros pour T et 120 000 euros pour G. Assurance responsabilité civile professionnelle par GALIAN-SMABTP n° de police 28137.J Mandat réf : 425845 - Le professionnel garantit et sécurise votre projet immobilier. Patrice VASSEUX (EI) Agent Commercial - Numéro RSAC : NANTES2016AC00022 - .
Détails du bien
  • Superficie (m²) 369
  • Code postal 44680

Diagnostic de
performances énergétiques

DPE
GES
Ce bien est proposé par
PROPRIETES PRIVEES
PROPRIETES PRIVEES
Voir les biens de l'agence
44 Allée Des Cinq Continents.
44120 Vertou
02 4 0 06 1 8 07
contact@proprietes-privees.com
WWW.PROPRIETES-PRIVEES.COM
Nos outils
Nous contacter pour ce bien

* champs obligatoire

Les informations communiquées sont destinées à "Fnaim Loire Atlantique" éditrice de ce site. Vous bénéficiez d'un droit d'accès, de modification, de rectification et de suppression de vos données personnelles (Loi n°2004-575 du 21 juin 2004 pour la confiance dans l'économie numérique). Pour les exercer, adressez vous à l’adresse de l’Editeur.

Partager ce
bien

Partager ce
bien

* champs obligatoire

Les informations communiquées sont destinées à "Fnaim Loire Atlantique" éditrice de ce site. Vous bénéficiez d'un droit d'accès, de modification, de rectification et de suppression de vos données personnelles (Loi n°2004-575 du 21 juin 2004 pour la confiance dans l'économie numérique). Pour les exercer, adressez vous à l’adresse de l’Editeur.

Calculatrice financière
Mensualités :

* Champs obligatoires

Ces biens
peuvent vous intéresser

  • Vente
    Terrain 1768m²
    44300 nantes Est
  • Vente
    Terrain 580m²
    44360 st etienne de montluc
    148 900 €
  • Vente
    Terrain 853m²
    44160 ste anne sur brivet
    79 000 €
FNAIM

FNAIM Loire Atlantique 3 bis rue Lorette de la Refoulais - 44000 NANTES 02.51.84.22.77 contact@fnaim44.fr

FNAIM 44 © 2026 | Tous droits réservés |

  • Plan du site
  • Mentions légales
  • Partenaires
  • Admin
  • Contact
Réalisé par

Comme beaucoup, notre site utilise les cookies

On aimerait vous accompagner pendant votre visite. En poursuivant, vous acceptez l'utilisation des cookies par ce site, afin de vous proposer des contenus adaptés et réaliser des statistiques !

Paramétrer

Cookies fonctionnelsCes cookies sont indispensables à la navigation sur le site, pour vous garantir un fonctionnement optimal. Ils ne peuvent donc pas être désactivés.

Statistiques de visitesPour améliorer votre expérience, on a besoin de savoir ce qui vous intéresse !
Les données récoltées sont anonymisées.

?

Google Analytics

Annonces personnaliséesOn garde le contact ? Ces cookies nous permettent de vous proposer des contenus publicitaires adaptés à vos centres d'intérêts.

?

Google Ads

?

Facebook Pixel

?

Youtube

En savoir plus

Nous utilisons des cookies pour nous permettre de mieux comprendre comment le site est utilisé. En continuant à utiliser ce site, vous acceptez notre politique de confidentialité. En savoir plus