• Accueil
  • Trouver un professionnel agréé
  • Nos évènements
  • Nos Formations
  • Nos partenaires
  • Assistance juridique
  • Bourse de l'emploi
Fnaim-44
ADHÉRER À LA FNAIM 44 ACCÈS ADHÉRENT
  1. Accueil
  2. Campbon
  3. Vente
  4. Maison
  5. 4 Pièces - 71m²
< Retour

Maison
4 Pièces 71 m²

Campbon - 44750

208 400 €
Descriptif du bien
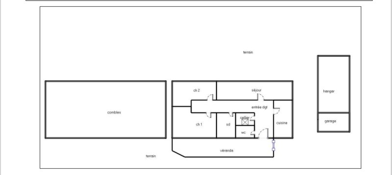
44750 Campbon, Maison Plain Pied sur un terrain de 3380m² Située à 1,5 Km du Bourg Ce bien offre ; Une entrée, une salle d'eau, wc séparé, 2 chambres, pièce de vie. Un garage de 90m² Un terrain de 3380m² arboré d'arbres fruitiers Pour visiter et vous accompagner dans votre projet, contactez Claudine Durand ,07.83.08.95.00 mail c.durand@proprietes-privees.com Agence, 44750 Campbon Cette annonce a été rédigée sous la responsabilité éditoriale de Claudine Durand EI agissant sous le statut d'agent commercial immatriculé au RSAC de St Nazaire sous le numéro 533772158000 Prix de vente : 208400 euros dont 8400 euros d'honoraires à la charge de l'acquéreur. Prix net vendeur : 200 000 euros DPE réalisé le 11/03/2022 Montant estimé des dépenses annuelles d'énergie pour un usage standard: entre 930 euros et 1310 euros par an. Prix moyens des énergies indexés sur l'année 2022 (abonnements compris). Consommation énergie primaire :183kWh/m² Les informations sur les risques auxquels ce bien est exposé sont disponibles sur le site. Géorisques : www.georisques.gouv.fr Selon l'article L.561.5 du Code Monétaire et Financier, pour l'organisation de la visite, la présentation d'une pièce d'identité vous sera demandée. Cette présente annonce a été rédigée sous la responsabilité éditoriale de Claudine Durand agissant sous le statut d'agent commercial immatriculé au RSAC SAINT NAZAIRE 533772158 auprès de la SAS PROPRIETES PRIVEES, au capital de 40 000 euros, ZAC LE CHÊNE FERRÉ - 44 ALLÉE DES CINQ CONTINENTS 44120 VERTOU; SIRET 487 624 777 00040, RCS Nantes. Carte professionnelle Transactions sur immeubles et fonds de commerce (T) et Gestion immobilière (G) n° CPI 4401 2016 000 010 388 délivrée par la CCI Nantes - Saint Nazaire. Compte séquestre n°30932508467 BPA SAINT-SEBASTIEN-SUR-LOIRE (44230) ; Garantie GALIAN - 89 rue de la Boétie, 75008 Paris - n°28137 J pour 2 000 000 euros pour T et 120 000 euros pour G. Assurance responsabilité civile professionnelle par MMA Entreprise n° de police 120.137.405 (4.20 % honoraires TTC à la charge de l'acquéreur.) Claudine DURAND (EI) Agent Commercial - Numéro RSAC : Saint-Nazaire 533 772 157 - .
Détails du bien
  • Superficie (m²) 71
  • Code postal 44750
  • Nombre de chambre(s) 2
  • Nombre de pièces 4

Diagnostic de
performances énergétiques

DPE
GES
Ce bien est proposé par
PROPRIETES PRIVEES
PROPRIETES PRIVEES
Voir les biens de l'agence
44 Allée Des Cinq Continents.
44120 Vertou
02 4 0 06 1 8 07
contact@proprietes-privees.com
WWW.PROPRIETES-PRIVEES.COM
Nos outils
Nous contacter pour ce bien

* champs obligatoire

Les informations communiquées sont destinées à "Fnaim Loire Atlantique" éditrice de ce site. Vous bénéficiez d'un droit d'accès, de modification, de rectification et de suppression de vos données personnelles (Loi n°2004-575 du 21 juin 2004 pour la confiance dans l'économie numérique). Pour les exercer, adressez vous à l’adresse de l’Editeur.

Partager ce
bien

Partager ce
bien

* champs obligatoire

Les informations communiquées sont destinées à "Fnaim Loire Atlantique" éditrice de ce site. Vous bénéficiez d'un droit d'accès, de modification, de rectification et de suppression de vos données personnelles (Loi n°2004-575 du 21 juin 2004 pour la confiance dans l'économie numérique). Pour les exercer, adressez vous à l’adresse de l’Editeur.

Calculatrice financière
Mensualités :

* Champs obligatoires

Ces biens
peuvent vous intéresser

  • Vente
    Maison 103m²
    44320 frossay
    194 250 €
  • Vente
    Maison 170m²
    44320 frossay
    449 350 €
  • Vente
    Maison 209m²
    44270 st meme le tenu
    269 900 €
FNAIM

FNAIM Loire Atlantique 3 bis rue Lorette de la Refoulais - 44000 NANTES 02.51.84.22.77 contact@fnaim44.fr

FNAIM 44 © 2026 | Tous droits réservés |

  • Plan du site
  • Mentions légales
  • Partenaires
  • Admin
  • Contact
Réalisé par

Comme beaucoup, notre site utilise les cookies

On aimerait vous accompagner pendant votre visite. En poursuivant, vous acceptez l'utilisation des cookies par ce site, afin de vous proposer des contenus adaptés et réaliser des statistiques !

Paramétrer

Cookies fonctionnelsCes cookies sont indispensables à la navigation sur le site, pour vous garantir un fonctionnement optimal. Ils ne peuvent donc pas être désactivés.

Statistiques de visitesPour améliorer votre expérience, on a besoin de savoir ce qui vous intéresse !
Les données récoltées sont anonymisées.

?

Google Analytics

Annonces personnaliséesOn garde le contact ? Ces cookies nous permettent de vous proposer des contenus publicitaires adaptés à vos centres d'intérêts.

?

Google Ads

?

Facebook Pixel

?

Youtube

En savoir plus

Nous utilisons des cookies pour nous permettre de mieux comprendre comment le site est utilisé. En continuant à utiliser ce site, vous acceptez notre politique de confidentialité. En savoir plus