• Accueil
  • Trouver un professionnel agréé
  • Nos évènements
  • Nos Formations
  • Nos partenaires
  • Assistance juridique
  • Bourse de l'emploi
Fnaim-44
ADHÉRER À LA FNAIM 44 ACCÈS ADHÉRENT
  1. Accueil
  2. Bordeaux
  3. 7 Pièces - 208m²
< Retour

Maison
7 Pièces 208 m²

Bordeaux - 33800

869 000 €
Descriptif du bien
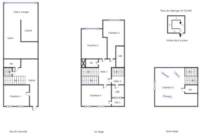
33800 - BORDEAUX - NANSOUTY. C'est dans le quartier très recherché de NANSOUTY, à deux pas de la PLACE NANSOUTY, que prend place cette belle maison FAMILIALE distribuée sur trois niveaux avec GRAND JARDIN PISCINABLE. Développée sur 216m2 au sol, elle offre trois niveaux généreux et chaleureux. Dès la grande entrée vous serez sous le charme : hauts plafonds, carreaux de ciment, cheminée, parquet et murs en pierre côtoient tout le confort actuel. Au rez-de-chaussée, une extension récente réalisée par un ARCHITECTE laisse place à un grand salon et une salle à manger avec sa cuisine équipée/aménagée à la fois fonctionnelle et esthétique avec vue sur la terrasse et son JARDIN de 160m2 PISCINABLE EXPOSE SUD. Côté pratique, on y trouve également une pièce TV pouvant faire office de chambre ainsi qu'un WC indépendant. Un escalier en pierre vous conduit à l'étage composé de 3 grandes chambres dont deux avec salle d'eau privative. Une salle de bains indépendante et un espace buanderie complètent ce niveau. Au dernier étage, vous trouverez une quatrième chambre parentale avec dressing et WC. Une GRANDE CAVE saine ainsi qu'un abri de jardin offrent de nombreux espaces de rangements supplémentaires. Cette maison située dans un des quartiers les plus prisés de Bordeaux est unique par son charme et ses agréments recherchés. CACHET DE L'ANCIEN préservé. Chauffage au gaz, radiateurs en fonte, CHAUDIERE FRISQUET NEUVE. Proche COMMERCES DE BOUCHE et ECOLES recherchées. A 10 min à pied du tram B (arrêt Barrière Saint-Genès). Accès facile à la GARE SAINT-JEAN. PRIX : 869 000 euros DPE : D - GES : D. Montant moyen estimé des dépenses annuelles d'énergie pour un usage standard établi à partir des prix de l'énergie de l'année 2021 : entre 2480 euros et 3400 euros Pour visiter et vous accompagner dans votre projet, contactez Arnaud FRAYRET, au 06 37 72 09 46 ou par courriel à a.frayret@proprietes-privees.com Cette présente annonce a été rédigée sous la responsabilité éditoriale de Arnaud FRAYRET agissant sous le statut d'agent commercial immatriculé au RSAC Nantes 837775543 auprès de la SAS PROPRIETES PRIVEES, Réseau national immobilier, au capital de 40000 euros, 44 ALLÉE DES CINQ CONTINENTS - ZAC LE CHÊNE FERRÉ, 44120 VERTOU, RCS Nantes n° 487 624 777 00040, Carte professionnelle T et G n° CPI 4401 2016 000 010 388 CCI Nantes-Saint Nazaire. Garantie GALIAN - 89 rue de la Boétie, 75008 Paris. Mandat réf : 446965 - Le professionnel garantit et sécurise votre projet immobilier. (3.95 % honoraires TTC à la charge de l'acquéreur.) Arnaud FRAYRET (EI) Agent Commercial - Numéro RSAC : STRASBOURG 837775543 - . Les informations sur les risques auxquels ce bien est exposé sont disponibles sur le site Géorisques : www. georisques. gouv. fr
Détails du bien
  • Superficie (m²) 208
  • Code postal 33800
  • Nombre de chambre(s) 5
  • Nombre de pièces 7
  • Nb de salle de bain 1

Diagnostic de
performances énergétiques

DPE
GES
Ce bien est proposé par
PROPRIETES PRIVEES
PROPRIETES PRIVEES
Voir les biens de l'agence
44 Allée Des Cinq Continents.
44120 Vertou
02 4 0 06 1 8 07
contact@proprietes-privees.com
WWW.PROPRIETES-PRIVEES.COM
Nos outils
Nous contacter pour ce bien

* champs obligatoire

Les informations communiquées sont destinées à "Fnaim Loire Atlantique" éditrice de ce site. Vous bénéficiez d'un droit d'accès, de modification, de rectification et de suppression de vos données personnelles (Loi n°2004-575 du 21 juin 2004 pour la confiance dans l'économie numérique). Pour les exercer, adressez vous à l’adresse de l’Editeur.

Partager ce
bien

Partager ce
bien

* champs obligatoire

Les informations communiquées sont destinées à "Fnaim Loire Atlantique" éditrice de ce site. Vous bénéficiez d'un droit d'accès, de modification, de rectification et de suppression de vos données personnelles (Loi n°2004-575 du 21 juin 2004 pour la confiance dans l'économie numérique). Pour les exercer, adressez vous à l’adresse de l’Editeur.

Calculatrice financière
Mensualités :

* Champs obligatoires

Ces biens
peuvent vous intéresser

  • Vente
    Maison 85m²
    44270 st meme le tenu
    198 400 €
  • Location
    Maison 98m²
    44270 st meme le tenu
    980 €
  • Vente
    Maison 163m²
    44300 nantes Est
FNAIM

FNAIM Loire Atlantique 3 bis rue Lorette de la Refoulais - 44000 NANTES 02.51.84.22.77 contact@fnaim44.fr

FNAIM 44 © 2026 | Tous droits réservés |

  • Plan du site
  • Mentions légales
  • Partenaires
  • Admin
  • Contact
Réalisé par

Comme beaucoup, notre site utilise les cookies

On aimerait vous accompagner pendant votre visite. En poursuivant, vous acceptez l'utilisation des cookies par ce site, afin de vous proposer des contenus adaptés et réaliser des statistiques !

Paramétrer

Cookies fonctionnelsCes cookies sont indispensables à la navigation sur le site, pour vous garantir un fonctionnement optimal. Ils ne peuvent donc pas être désactivés.

Statistiques de visitesPour améliorer votre expérience, on a besoin de savoir ce qui vous intéresse !
Les données récoltées sont anonymisées.

?

Google Analytics

Annonces personnaliséesOn garde le contact ? Ces cookies nous permettent de vous proposer des contenus publicitaires adaptés à vos centres d'intérêts.

?

Google Ads

?

Facebook Pixel

?

Youtube

En savoir plus

Nous utilisons des cookies pour nous permettre de mieux comprendre comment le site est utilisé. En continuant à utiliser ce site, vous acceptez notre politique de confidentialité. En savoir plus