• Accueil
  • Trouver un professionnel agréé
  • Nos évènements
  • Nos Formations
  • Nos partenaires
  • Assistance juridique
  • Bourse de l'emploi
Fnaim-44
ADHÉRER À LA FNAIM 44 ACCÈS ADHÉRENT
  1. Accueil
  2. Ste Luce Sur Loire
  3. Vente
  4. Maison
  5. 3 Pièces - 65m²
< Retour

Maison
3 Pièces 65 m²

Ste Luce Sur Loire - 44980

172 000 €
Descriptif du bien
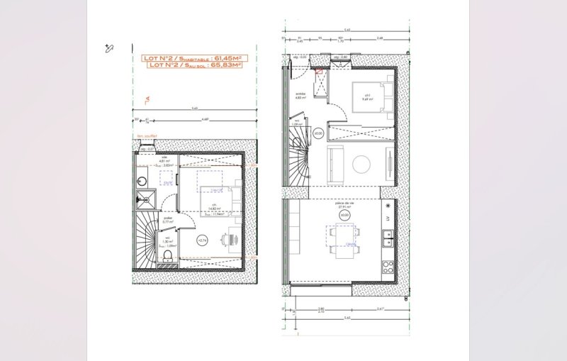
LOT 2 Sainte-Luce-sur-Loire Projet maison avec jardin Terrain 188 m² Secteur des Trois Chênes 44980 Sainte-Luce-sur-Loire Belle opportunité sur le secteur, idéale pour résidence principale ou investissement locatif. Revenu locatif estimé : environ 900 euros / mois. Sur une parcelle de 188 m², ce projet de maison contemporaine d'environ 65 m² habitables offre un positionnement recherché entre appartement et maison de ville, avec jardin privatif et indépendance. Projet déjà validé Permis validé par architecte Projet accepté en mairie 2 chambres dont 1 en rez-de-chaussée 2 WC (un par niveau) Jardin privatif d'environ 80 m² 2 places de stationnement Aucun voisin au-dessus ni en dessous Un produit rare sur Sainte-Luce-sur-Loire, parfaitement adapté aux primo-accédants, jeunes couples ou investisseurs recherchant un bien avec extérieur et budget maîtrisé. Le bien est proposé BRUT sans travaux , prévoir un budget complémentaire de 78 905 euros pour un produit clé en main Dossier complet et plans disponibles sur demande. DPE projeté en cours de réalisation ; le DPE présenté correspond à celui de la maison d'origine. Le lot est proposé au Prix de 172 000 euros dont 7.5% d'honoraires charge acquéreur, soit 160 000 euros hors honoraires. DPE F GES F Montant estimé des dépenses annuelles d'énergie pour un usage standard entre 2700 et 3500 euros indexées aux années 2021, 2022 et 2023 Logement à consommation énergétique excessive : classe F Pour visiter et vous accompagner dans votre projet, contactez Léa LAUMONE, au 0667502144 ou, par courriel à l.laumone@proprietes-privees.com. Selon l'article L.561.5 du Code Monétaire et Financier, pour l'organisation de la visite, la présentation d'une pièce d'identité vous sera demandée. Cette présente annonce a été rédigée sous la responsabilité éditoriale de Léa LAUMONE agissant sous le statut d'agent commercial immatriculé au RSAC NANTES 930477765 auprès de SAS PROPRIETES PRIVEES, au capital de 44 920 euros, ZAC LE CHÊNE FERRÉ - 44 ALLÉE DES CINQ CONTINENTS 44120 VERTOU; SIRET 487 624 777 00040, RCS Nantes. Carte Professionnelle Transactions sur immeubles et fonds de commerce (T) et Gestion immobilière (G) n°CPI 4401 2016 000 010 388 délivrée par la CCI Nantes - Saint Nazaire. Compte séquestre n°30932508467 BPA SAINT-SEBASTIEN-SUR-LOIRE (44230). Garantie GALIAN-SMABTP - 89 rue de la Boétie, 75008 Paris - n°28137 J pour 2 000 000 euros pour T et 120 000 euros pour G. Assurance responsabilité civile professionnelle par GALIAN-SMABTP n° de police 28137.J Mandat réf : 441042 - Le professionnel garantit et sécurise votre projet immobilier. (7.50 % honoraires TTC à la charge de l'acquéreur.) Copropriété de 2 lots - dont 2 lots habitation. Léa LAUMONE (EI) Agent Commercial - Numéro RSAC : NANTES 930477765 - . Les informations sur les risques auxquels ce bien est exposé sont disponibles sur le site Géorisques : www. georisques. gouv. fr
Détails du bien
  • Superficie (m²) 65
  • Code postal 44980
  • Nombre de chambre(s) 2
  • Nombre de pièces 3

Diagnostic de
performances énergétiques

DPE
GES
Ce bien est proposé par
PROPRIETES PRIVEES
PROPRIETES PRIVEES
Voir les biens de l'agence
44 Allée Des Cinq Continents.
44120 Vertou
02 4 0 06 1 8 07
contact@proprietes-privees.com
WWW.PROPRIETES-PRIVEES.COM
Nos outils
Nous contacter pour ce bien

* champs obligatoire

Les informations communiquées sont destinées à "Fnaim Loire Atlantique" éditrice de ce site. Vous bénéficiez d'un droit d'accès, de modification, de rectification et de suppression de vos données personnelles (Loi n°2004-575 du 21 juin 2004 pour la confiance dans l'économie numérique). Pour les exercer, adressez vous à l’adresse de l’Editeur.

Partager ce
bien

Partager ce
bien

* champs obligatoire

Les informations communiquées sont destinées à "Fnaim Loire Atlantique" éditrice de ce site. Vous bénéficiez d'un droit d'accès, de modification, de rectification et de suppression de vos données personnelles (Loi n°2004-575 du 21 juin 2004 pour la confiance dans l'économie numérique). Pour les exercer, adressez vous à l’adresse de l’Editeur.

Calculatrice financière
Mensualités :

* Champs obligatoires

Ces biens
peuvent vous intéresser

  • Vente
    Maison 155m²
    44000 nantes Centre
    634 900 €
  • Vente
    Maison 163m²
    44300 nantes Est
  • Vente
    Maison 122m²
    44119 grandchamps des fontaines
    348 000 €
FNAIM

FNAIM Loire Atlantique 3 bis rue Lorette de la Refoulais - 44000 NANTES 02.51.84.22.77 contact@fnaim44.fr

FNAIM 44 © 2026 | Tous droits réservés |

  • Plan du site
  • Mentions légales
  • Partenaires
  • Admin
  • Contact
Réalisé par

Comme beaucoup, notre site utilise les cookies

On aimerait vous accompagner pendant votre visite. En poursuivant, vous acceptez l'utilisation des cookies par ce site, afin de vous proposer des contenus adaptés et réaliser des statistiques !

Paramétrer

Cookies fonctionnelsCes cookies sont indispensables à la navigation sur le site, pour vous garantir un fonctionnement optimal. Ils ne peuvent donc pas être désactivés.

Statistiques de visitesPour améliorer votre expérience, on a besoin de savoir ce qui vous intéresse !
Les données récoltées sont anonymisées.

?

Google Analytics

Annonces personnaliséesOn garde le contact ? Ces cookies nous permettent de vous proposer des contenus publicitaires adaptés à vos centres d'intérêts.

?

Google Ads

?

Facebook Pixel

?

Youtube

En savoir plus

Nous utilisons des cookies pour nous permettre de mieux comprendre comment le site est utilisé. En continuant à utiliser ce site, vous acceptez notre politique de confidentialité. En savoir plus