• Accueil
  • Trouver un professionnel agréé
  • Nos évènements
  • Nos Formations
  • Nos partenaires
  • Assistance juridique
  • Bourse de l'emploi
Fnaim-44
ADHÉRER À LA FNAIM 44 ACCÈS ADHÉRENT
  1. Accueil
  2. St Mars Du Desert
  3. Vente
  4. Maison
  5. 4 Pièces - 88m²
< Retour

Maison
4 Pièces 88 m²

St Mars Du Desert - 44850

269 000 €
Descriptif du bien
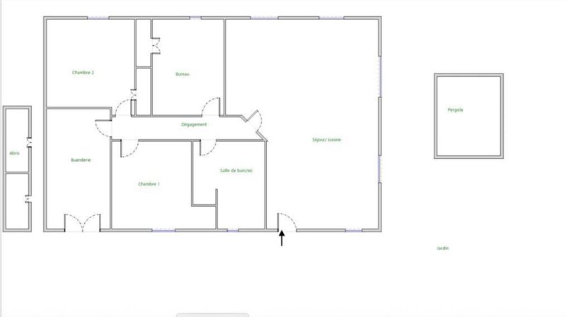
ST-MARS-DU-DESERT - Bourg Maison de plain-pied (3 chambres) avec jardin A seulement 3 minutes à pied du centre-bourg, des commerces et des écoles, découvrez cette maison lumineuse et fonctionnelle (88m² entièrement de plain-pied) avec un beau terrain constructible, idéal pour une vie au calme, au coeur de Saint-Mars-du-Désert. La grande pièce de vie (43m²) lumineuse grâce à ses nombreuses ouvertures (triple exposition) et organisée autour de sa cheminée centrale, offre un bel espace de convivialité. Sa cuisine ouverte (aménagée et équipée) et le volume de la pièce en font un lieu chaleureux, pensé pour les moments en famille ou entre amis. L'espace nuit comprend trois chambres sur parquet (dont une avec point d'eau). La salle de bain (spacieuse et agréable) est équipée d'une baignoire et d'une douche. Un grand cellier complète l'ensemble et offre un espace de rangement supplémentaire. Côté jardin, sur une parcelle de près de 600m², profitez d'une terrasse bien exposée (avec pergola et barbecue intégré) et d'un terrain clos, idéal pour les repas d'été, les jeux d'enfants ou les journées de détente. Nombreux stationnements sur la parcelle. Terrain constructible. Atouts techniques :` - Bonne qualité énergétique (DPE D) - Climatisation - Ballon ECS récent - Portail motorisé Bonus : - Grand grenier (90m²) pour espace de stockage supplémentaire Une maison lumineuse, très bien située, proche de toutes les commodités et offrant des possibilités d'évolution pour s'adapter à votre mode de vie... A découvrir sans tarder ! *** DPE D - GES B (montant moyen estimé des dépenses annuelles d'énergie pour un usage standard sur 5 usages : chauffage, eau chaude sanitaire, climatisation, éclairage, auxiliaires - établi à partir des prix de l'énergie des années 2021, 2022 et 2023 : entre 1 990 euros et 2 740 euros par an). Taxe foncière : 555 euros Prix : 269 000 euros (honoraires 5,49% TTC inclus charge acquéreur soit 255 000 euros hors honoraires) Pour visiter et vous accompagner dans votre projet, contactez Lydie MORILLEAU, Conseillère immobilier - Tél : 0749864746 - Courriel : l.morilleau@proprietes-privees.com - Site : www.votre-bien.immo *** ESTIMATION GRATUITE DE VOTRE BIEN CONFIEZ VOTRE PROJET A DES PROFESSIONNELS *** Cette présente annonce a été rédigée sous la responsabilité éditoriale de Julien PREAU et Lydie MORILLEAU agissant sous le statut d'agent commercial immatriculé au RSAC 2021AC00416 auprès de la SAS PROPRIETES PRIVEES au capital de 40 000 euros - ZAC Le Chêne Ferré, 44 allée des Cinq Continents, 44120 VERTOU - SIRET 487 624 777 00040, RCS Nantes. Carte professionnelle Transactions sur immeubles et fonds de commerce (T) et Gestion immobilière (G) n° CPI 4401 2016 000 010 388 délivrée par la CCI Nantes - Saint Nazaire. Compte séquestre n°30932508467 BPA ST-SEBASTIEN-SUR-LOIRE (44230) ; Garantie GALIAN - 89 rue de la Boétie, 75008 Paris - n°28137 J pour 2 000 000 euros pour T et 120 000 euros pour G. Assurance responsabilité civile professionnelle par MMA Entreprise n° de police 120.137.405. Les informations sur les risques auxquels ce bien est exposé sont disponibles sur le site Géorisques : www.georisques.gouv.fr. - Selon l'article L.561.5 du Code Monétaire et Financier, pour l'organisation de la visite, la présentation d'une pièce d'identité est demandée. Mandat réf : 430555 Le professionnel garantit et sécurise votre projet immobilier. (5.49 % honoraires TTC à la charge de l'acquéreur.) JULIEN PREAU ET LYDIE MORILLEAU (EI) Agent Commercial - Numéro RSAC : 2021AC00416 - .
Détails du bien
  • Superficie (m²) 88
  • Code postal 44850
  • Nombre de chambre(s) 3
  • Nombre de pièces 4
  • Nb de salle de bain 1

Diagnostic de
performances énergétiques

DPE
GES
Ce bien est proposé par
PROPRIETES PRIVEES
PROPRIETES PRIVEES
Voir les biens de l'agence
44 Allée Des Cinq Continents.
44120 Vertou
02 4 0 06 1 8 07
contact@proprietes-privees.com
WWW.PROPRIETES-PRIVEES.COM
Nos outils
Nous contacter pour ce bien

* champs obligatoire

Les informations communiquées sont destinées à "Fnaim Loire Atlantique" éditrice de ce site. Vous bénéficiez d'un droit d'accès, de modification, de rectification et de suppression de vos données personnelles (Loi n°2004-575 du 21 juin 2004 pour la confiance dans l'économie numérique). Pour les exercer, adressez vous à l’adresse de l’Editeur.

Partager ce
bien

Partager ce
bien

* champs obligatoire

Les informations communiquées sont destinées à "Fnaim Loire Atlantique" éditrice de ce site. Vous bénéficiez d'un droit d'accès, de modification, de rectification et de suppression de vos données personnelles (Loi n°2004-575 du 21 juin 2004 pour la confiance dans l'économie numérique). Pour les exercer, adressez vous à l’adresse de l’Editeur.

Calculatrice financière
Mensualités :

* Champs obligatoires

Ces biens
peuvent vous intéresser

  • Vente
    Maison 155m²
    44000 nantes Centre
    634 900 €
  • Vente
    Maison 163m²
    44300 nantes Est
  • Vente
    Maison 122m²
    44119 grandchamps des fontaines
    348 000 €
FNAIM

FNAIM Loire Atlantique 3 bis rue Lorette de la Refoulais - 44000 NANTES 02.51.84.22.77 contact@fnaim44.fr

FNAIM 44 © 2026 | Tous droits réservés |

  • Plan du site
  • Mentions légales
  • Partenaires
  • Admin
  • Contact
Réalisé par

Comme beaucoup, notre site utilise les cookies

On aimerait vous accompagner pendant votre visite. En poursuivant, vous acceptez l'utilisation des cookies par ce site, afin de vous proposer des contenus adaptés et réaliser des statistiques !

Paramétrer

Cookies fonctionnelsCes cookies sont indispensables à la navigation sur le site, pour vous garantir un fonctionnement optimal. Ils ne peuvent donc pas être désactivés.

Statistiques de visitesPour améliorer votre expérience, on a besoin de savoir ce qui vous intéresse !
Les données récoltées sont anonymisées.

?

Google Analytics

Annonces personnaliséesOn garde le contact ? Ces cookies nous permettent de vous proposer des contenus publicitaires adaptés à vos centres d'intérêts.

?

Google Ads

?

Facebook Pixel

?

Youtube

En savoir plus

Nous utilisons des cookies pour nous permettre de mieux comprendre comment le site est utilisé. En continuant à utiliser ce site, vous acceptez notre politique de confidentialité. En savoir plus