• Accueil
  • Trouver un professionnel agréé
  • Nos évènements
  • Nos Formations
  • Nos partenaires
  • Assistance juridique
  • Bourse de l'emploi
Fnaim-44
ADHÉRER À LA FNAIM 44 ACCÈS ADHÉRENT
  1. Accueil
  2. Nantes Sud
  3. Vente
  4. Appartement
  5. 2 Pièces - 39m²
< Retour

Appartement
2 Pièces 39 m²

Nantes Sud - 44200

154 000 €
Descriptif du bien
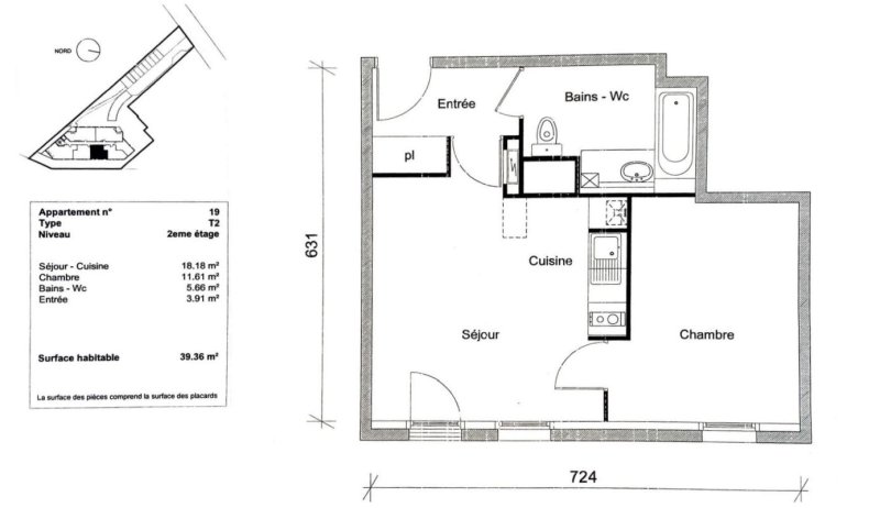
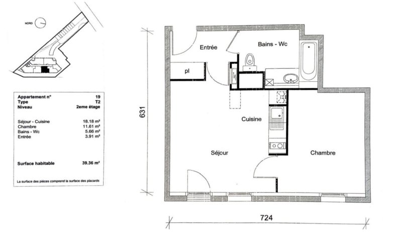
Nantes Saint-Jacques - Aux croisements du boulevard de Vendée, de la route de Vertou et de la Route de Clisson, cet appartement est idéalement placé pour votre résidence principale, car aux pieds du busway et de l'accès au périphérique ou pour votre investissement locatif car très proche du lycée de la Joliverie et de ses étudiants. Dans une petite résidence de 10 ans comprenant seulement 26 appartements; venez visiter ce type 2 d'environ 39 m² habitables. Situé au 2ème étage avec ascenseur, cet appartement en parfait état, sans travaux à prévoir. Appartement comprenant une entrée avec placard, une salle de bain avec WC (meuble vasque et machine à laver), une pièce de vie d'environ 19 m² (avec espace cuisine aménagé et équipé), une grande chambre. En complément, une place de parking en sous-sol. Vous bénéficierez d'un local à vélo commun sécurisé. Cette annonce comporte des photos de suggestions d'aménagements proposé par l'IA. Les informations sur les risques auxquels ce bien est exposé sont disponibles sur le site Géorisques: www.georisques.gouv.fr (6.21 % honoraires TTC à la charge de l'acquéreur.) Copropriété de 58 lots - dont 26 lots habitation. Charges annuelles : 1056 euros.
Détails du bien
  • Superficie (m²) 39
  • Code postal 44200
  • Nombre de chambre(s) 1
  • Nombre de pièces 2
  • Nb de salle de bain 1

Diagnostic de
performances énergétiques

DPE
GES
Ce bien est proposé par
Bras Immobilier REZE
Bras Immobilier REZE
Voir les biens de l'agence
32, Avenue De La Libération
44400 Reze
02 4 0 20 3 3 06
reze@bras-immobilier.fr
Nos outils
Nous contacter pour ce bien

* champs obligatoire

Les informations communiquées sont destinées à "Fnaim Loire Atlantique" éditrice de ce site. Vous bénéficiez d'un droit d'accès, de modification, de rectification et de suppression de vos données personnelles (Loi n°2004-575 du 21 juin 2004 pour la confiance dans l'économie numérique). Pour les exercer, adressez vous à l’adresse de l’Editeur.

Partager ce
bien

Partager ce
bien

* champs obligatoire

Les informations communiquées sont destinées à "Fnaim Loire Atlantique" éditrice de ce site. Vous bénéficiez d'un droit d'accès, de modification, de rectification et de suppression de vos données personnelles (Loi n°2004-575 du 21 juin 2004 pour la confiance dans l'économie numérique). Pour les exercer, adressez vous à l’adresse de l’Editeur.

Calculatrice financière
Mensualités :

* Champs obligatoires

Ces biens
peuvent vous intéresser

  • Vente
    Appartement 90m²
    44300 nantes Est
  • Location
    Appartement 54m²
    44470 carquefou
    640 €
  • Location
    Appartement 55m²
    44110 chateaubriant
FNAIM

FNAIM Loire Atlantique 3 bis rue Lorette de la Refoulais - 44000 NANTES 02.51.84.22.77 contact@fnaim44.fr

FNAIM 44 © 2026 | Tous droits réservés |

  • Plan du site
  • Mentions légales
  • Partenaires
  • Admin
  • Contact
Réalisé par

Comme beaucoup, notre site utilise les cookies

On aimerait vous accompagner pendant votre visite. En poursuivant, vous acceptez l'utilisation des cookies par ce site, afin de vous proposer des contenus adaptés et réaliser des statistiques !

Paramétrer

Cookies fonctionnelsCes cookies sont indispensables à la navigation sur le site, pour vous garantir un fonctionnement optimal. Ils ne peuvent donc pas être désactivés.

Statistiques de visitesPour améliorer votre expérience, on a besoin de savoir ce qui vous intéresse !
Les données récoltées sont anonymisées.

?

Google Analytics

Annonces personnaliséesOn garde le contact ? Ces cookies nous permettent de vous proposer des contenus publicitaires adaptés à vos centres d'intérêts.

?

Google Ads

?

Facebook Pixel

?

Youtube

En savoir plus

Nous utilisons des cookies pour nous permettre de mieux comprendre comment le site est utilisé. En continuant à utiliser ce site, vous acceptez notre politique de confidentialité. En savoir plus