• Accueil
  • Trouver un professionnel agréé
  • Nos évènements
  • Nos Formations
  • Nos partenaires
  • Assistance juridique
  • Bourse de l'emploi
Fnaim-44
ADHÉRER À LA FNAIM 44 ACCÈS ADHÉRENT
  1. Accueil
  2. Nantes Centre
  3. Vente
  4. Appartement
  5. 4 Pièces - 94m²
< Retour

Appartement
4 Pièces 94 m²

Nantes Centre - 44000

480 000 €
Descriptif du bien
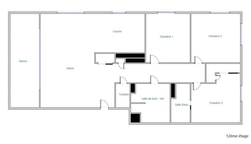
Au sein de la résidence VISEO (2021) gérée par BRAS IMMOBILIER, au 12ème étage avec ascenseur, très bel appartement de type 4 lumineux et avec une vue dégagée. Le logement offre une vaste entrée, un séjour sur parquet donnant sur une belle loggia, une cuisine aménagée et équipée (four, plaques, hotte, meubles, évier, frigo), un dégagement, une salle de bains (baignoire, WC, meuble vasque et emplacement pour une machine à laver), deux chambres, une suite parentale (avec avec sa salle d'eau d'eau) et un WC séparé. En annexes, deux places de parking privées en sous-sol et un cellier. Les charges incluent l'eau froide, l'eau chaude et le chauffage (urbain). L'appartement se situe à proximité des commerces et des transports (gare sud, bus 5 et C3). Les informations sur les risques auxquels ce bien est exposé, y compris l'obligation légale de débroussaillement, sont disponibles sur le site Géorisques. (3.90 % honoraires TTC à la charge de l'acquéreur.) Copropriété de 141 lots - dont 76 lots habitation. Charges annuelles : 2756 euros. Les informations sur les risques auxquels ce bien est exposé sont disponibles sur le site Géorisques : www. georisques. gouv. fr
Détails du bien
  • Superficie (m²) 94
  • Code postal 44000
  • Nombre de chambre(s) 3
  • Nombre de pièces 4
  • Nb de salle de bain 1

Diagnostic de
performances énergétiques

DPE
GES
Ce bien est proposé par
BRAS IMMOBILIER
BRAS IMMOBILIER
Voir les biens de l'agence
50, Route De Vannes
44100 Nantes Ouest
02 4 0 20 3 3 06
accueil@bras-immobilier.fr
/www.bras-immobilier.fr
Nos outils
Nous contacter pour ce bien

* champs obligatoire

Les informations communiquées sont destinées à "Fnaim Loire Atlantique" éditrice de ce site. Vous bénéficiez d'un droit d'accès, de modification, de rectification et de suppression de vos données personnelles (Loi n°2004-575 du 21 juin 2004 pour la confiance dans l'économie numérique). Pour les exercer, adressez vous à l’adresse de l’Editeur.

Partager ce
bien

Partager ce
bien

* champs obligatoire

Les informations communiquées sont destinées à "Fnaim Loire Atlantique" éditrice de ce site. Vous bénéficiez d'un droit d'accès, de modification, de rectification et de suppression de vos données personnelles (Loi n°2004-575 du 21 juin 2004 pour la confiance dans l'économie numérique). Pour les exercer, adressez vous à l’adresse de l’Editeur.

Calculatrice financière
Mensualités :

* Champs obligatoires

Ces biens
peuvent vous intéresser

  • Location
    Appartement 32m²
    44220 coueron
    606 €
  • Vente
    Appartement 81m²
    44200 nantes sud
    279 900 €
  • Vente
    Appartement 103m²
    44000 nantes Centre
    246 750 €
FNAIM

FNAIM Loire Atlantique 3 bis rue Lorette de la Refoulais - 44000 NANTES 02.51.84.22.77 contact@fnaim44.fr

FNAIM 44 © 2026 | Tous droits réservés |

  • Plan du site
  • Mentions légales
  • Partenaires
  • Admin
  • Contact
Réalisé par

Comme beaucoup, notre site utilise les cookies

On aimerait vous accompagner pendant votre visite. En poursuivant, vous acceptez l'utilisation des cookies par ce site, afin de vous proposer des contenus adaptés et réaliser des statistiques !

Paramétrer

Cookies fonctionnelsCes cookies sont indispensables à la navigation sur le site, pour vous garantir un fonctionnement optimal. Ils ne peuvent donc pas être désactivés.

Statistiques de visitesPour améliorer votre expérience, on a besoin de savoir ce qui vous intéresse !
Les données récoltées sont anonymisées.

?

Google Analytics

Annonces personnaliséesOn garde le contact ? Ces cookies nous permettent de vous proposer des contenus publicitaires adaptés à vos centres d'intérêts.

?

Google Ads

?

Facebook Pixel

?

Youtube

En savoir plus

Nous utilisons des cookies pour nous permettre de mieux comprendre comment le site est utilisé. En continuant à utiliser ce site, vous acceptez notre politique de confidentialité. En savoir plus