• Accueil
  • Trouver un professionnel agréé
  • Nos évènements
  • Nos Formations
  • Nos partenaires
  • Assistance juridique
  • Bourse de l'emploi
Fnaim-44
ADHÉRER À LA FNAIM 44 ACCÈS ADHÉRENT
  1. Accueil
  2. St Sebastien Sur Loire
  3. Location
  4. Local Commercial
< Retour

Local commercial

St Sebastien Sur Loire - 44230

2 175 €
(+125 € de charges)
Descriptif du bien
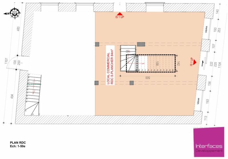
LOIRE OCÉAN EXPANSION propose à la location un local commercial indépendant d'environ 155 m², développé sur deux niveaux, implanté au sein de l'agglomération nantaise. Ce bien se compose d'un rez-de-chaussée d'environ 85 m² avec deux vitrines et une porte automatique vitrée, offrant une visibilité commerciale, ainsi qu'une hauteur sous poutres d'environ 3,00 m. À l'étage, une surface complémentaire d'environ 71 m² avec une hauteur sous plafond d'environ 3,50 m permet d'envisager des espaces bureaux, showroom ou réserve. Locaux chauffés et rafraîchis. Configuration fonctionnelle pour une activité commerciale ou de services. Accessibilité directe et environnement dynamique. Loyer annuel 24.600 Euros HT/HC – conditions financières détaillées en fiche produit CRM. Conformément à la réglementation en vigueur, un état des risques complet sera remis lors de la transmission du dossier. Les éléments détaillés relatifs aux risques (dont radon et sismicité) seront communiqués en visite et dans le dossier. Contactez-nous pour organiser une visite et apprécier le potentiel de ce bien. LOIRE OCÉAN EXPANSION - 02 40 20 63 11 - www.loireocean-expansion.fr
Détails du bien
  • Code postal 44230
  • Charges 125 €

Diagnostic de
performances énergétiques

DPE
GES
Ce bien est proposé par
LOIRE OCEAN Expansion
LOIRE OCEAN Expansion
Créer mon dossier de location Avec
Voir les biens de l'agence
1, Avenue Des Améthystes 44300 Nantes
44300 Nantes Est
02 4 0 20 6 3 11
contactez-nous@loe.team
/loireocean-expansion.fr/
Nos outils
Nous contacter pour ce bien

* champs obligatoire

Les informations communiquées sont destinées à "Fnaim Loire Atlantique" éditrice de ce site. Vous bénéficiez d'un droit d'accès, de modification, de rectification et de suppression de vos données personnelles (Loi n°2004-575 du 21 juin 2004 pour la confiance dans l'économie numérique). Pour les exercer, adressez vous à l’adresse de l’Editeur.

Partager ce
bien

Partager ce
bien

* champs obligatoire

Les informations communiquées sont destinées à "Fnaim Loire Atlantique" éditrice de ce site. Vous bénéficiez d'un droit d'accès, de modification, de rectification et de suppression de vos données personnelles (Loi n°2004-575 du 21 juin 2004 pour la confiance dans l'économie numérique). Pour les exercer, adressez vous à l’adresse de l’Editeur.

Calculatrice financière
Mensualités :

* Champs obligatoires

Ces biens
peuvent vous intéresser

  • Location
    Local commercial
    44600 st nazaire
    593 €
  • Vente
    Local commercial
    44600 st nazaire
    77 000 €
  • Vente
    Local commercial
    44120 vertou
    509 000 €
FNAIM

FNAIM Loire Atlantique 3 bis rue Lorette de la Refoulais - 44000 NANTES 02.51.84.22.77 contact@fnaim44.fr

FNAIM 44 © 2026 | Tous droits réservés |

  • Plan du site
  • Mentions légales
  • Partenaires
  • Admin
  • Contact
Réalisé par

Comme beaucoup, notre site utilise les cookies

On aimerait vous accompagner pendant votre visite. En poursuivant, vous acceptez l'utilisation des cookies par ce site, afin de vous proposer des contenus adaptés et réaliser des statistiques !

Paramétrer

Cookies fonctionnelsCes cookies sont indispensables à la navigation sur le site, pour vous garantir un fonctionnement optimal. Ils ne peuvent donc pas être désactivés.

Statistiques de visitesPour améliorer votre expérience, on a besoin de savoir ce qui vous intéresse !
Les données récoltées sont anonymisées.

?

Google Analytics

Annonces personnaliséesOn garde le contact ? Ces cookies nous permettent de vous proposer des contenus publicitaires adaptés à vos centres d'intérêts.

?

Google Ads

?

Facebook Pixel

?

Youtube

En savoir plus

Nous utilisons des cookies pour nous permettre de mieux comprendre comment le site est utilisé. En continuant à utiliser ce site, vous acceptez notre politique de confidentialité. En savoir plus