• Accueil
  • Trouver un professionnel agréé
  • Nos évènements
  • Nos Formations
  • Nos partenaires
  • Assistance juridique
  • Bourse de l'emploi
Fnaim-44
ADHÉRER À LA FNAIM 44 ACCÈS ADHÉRENT
  1. Accueil
  2. St Herblain
  3. Location
  4. Local Commercial
< Retour

Local commercial

St Herblain - 44800

4 802 €
Descriptif du bien
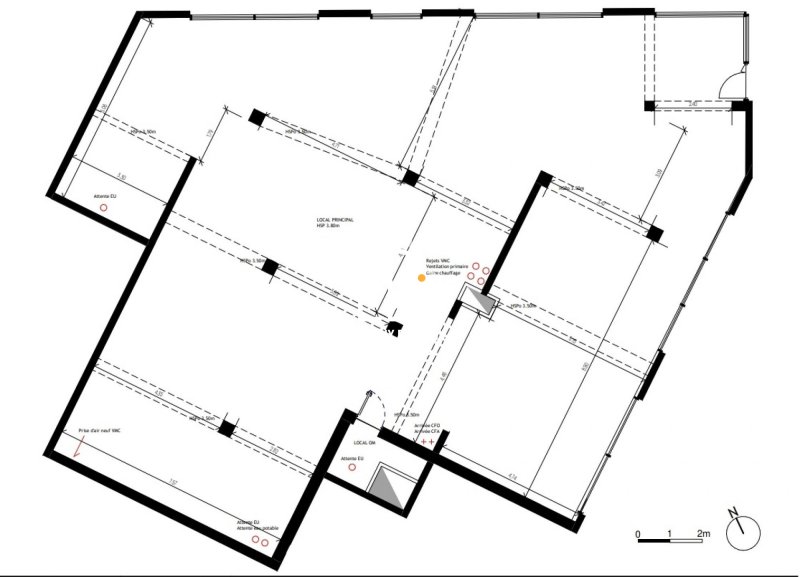
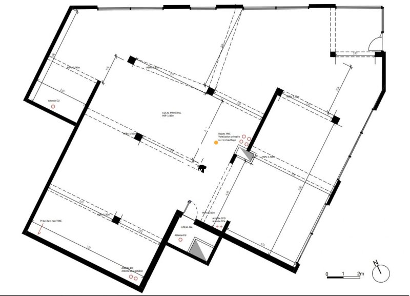
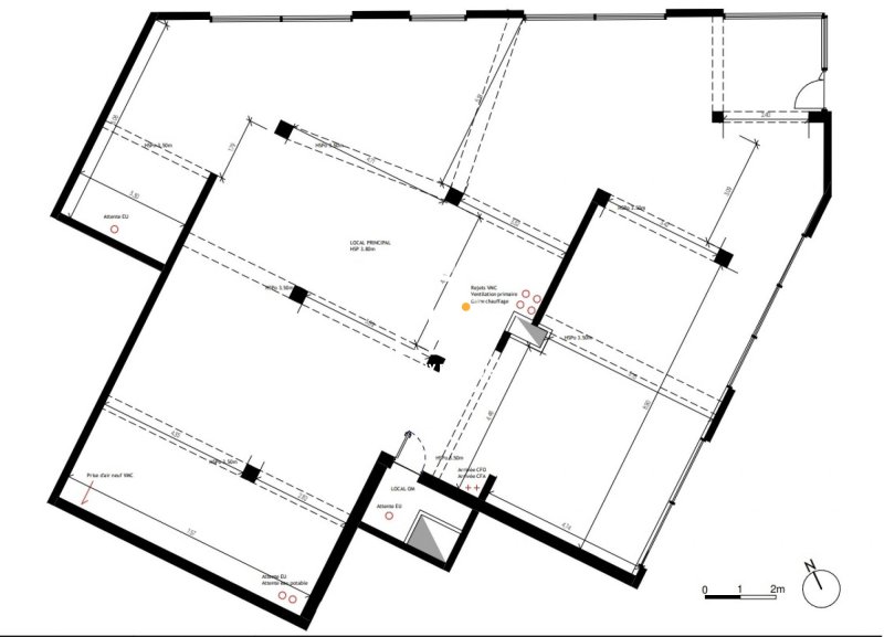
A louer Local commercial d'angle EMPLACEMENT N°1 Sur la commune de Saint-Herblain, Seconde ville de la Métropole Nantaise Emplacement stratégique au centre de la ZAC DE LA BAULE, sur le Boulevard Charles Gautier A proximité piétonne de la POLYCLINIQUE DE L'ATLANTIQUE ZONE TERTIAIRE ARMOR et ZONE COMMERCIALE ATLANTIS à 5 minutes en voiture ou en en transports en commun Desserte Réseau NAOLIB : Chronobus 3 , BUS 59/350, Tramway Ligne 1 Activité de services uniquement conformément à la législation en vigueur Idéal professions médicales, services à la personnes, Interim ... Le local est brut de béton, fourreaux en attentes huisseries posées. Nombreux parkings à proximité. DISPONIBILITÉ IMMÉDIATE Conditions de locatives : Bail commercial 3/6/9 (notarié) Loyer annuel 57 620 € HT/HC. 2 mois de dépôt de garantie A la charge du preneur : Honoraires de commercialisation 25% HT du loyer annuel HT/HC. Frais de rédactions de bail et d'état des lieux en sus Vous recherchez à implanter votre activité sur la ZAC DE LA BAULE à Saint-Herblain? Contactez-nous pour toutes informations complémentaires Honoraires de 14 405 € HT à la charge du locataire. Dépôt de garantie 9 604 €. Non soumis au DPE. Les informations sur les risques auxquels ce bien est exposé sont disponibles sur le site Géorisques : georisques.gouv.fr. Votre conseiller LOCAUX-BUREAUX-COMMERCES : Nicolas FOULON Agent commercial (Entreprise individuelle) RSAC ADC 4401 2025 000 000 873 RCP RCACO-20-016231 GALIAN SMA BTP. LOCAUX-BUREAUX-COMMERCES 02 55 07 86 35
Détails du bien
  • Code postal 44800

Diagnostic de
performances énergétiques

DPE
GES
Ce bien est proposé par
LOCAUX BUREAUX COMMERCES
LOCAUX BUREAUX COMMERCES
Créer mon dossier de location Avec
Voir les biens de l'agence
2 Rue Robert Schuman
44400 Reze
02 55 07 86 35
accueil@groupelbc.com
/www.locaux-bureaux-commerces.fr/
Nos outils
Nous contacter pour ce bien

* champs obligatoire

Les informations communiquées sont destinées à "Fnaim Loire Atlantique" éditrice de ce site. Vous bénéficiez d'un droit d'accès, de modification, de rectification et de suppression de vos données personnelles (Loi n°2004-575 du 21 juin 2004 pour la confiance dans l'économie numérique). Pour les exercer, adressez vous à l’adresse de l’Editeur.

Partager ce
bien

Partager ce
bien

* champs obligatoire

Les informations communiquées sont destinées à "Fnaim Loire Atlantique" éditrice de ce site. Vous bénéficiez d'un droit d'accès, de modification, de rectification et de suppression de vos données personnelles (Loi n°2004-575 du 21 juin 2004 pour la confiance dans l'économie numérique). Pour les exercer, adressez vous à l’adresse de l’Editeur.

Calculatrice financière
Mensualités :

* Champs obligatoires

Ces biens
peuvent vous intéresser

  • Vente
    Local commercial
    44120 vertou
    58 000 €
  • Vente
    Local commercial
    44120 vertou
    377 000 €
  • Vente
    Local commercial
    44120 vertou
    181 500 €
FNAIM

FNAIM Loire Atlantique 3 bis rue Lorette de la Refoulais - 44000 NANTES 02.51.84.22.77 contact@fnaim44.fr

FNAIM 44 © 2026 | Tous droits réservés |

  • Plan du site
  • Mentions légales
  • Partenaires
  • Admin
  • Contact
Réalisé par

Comme beaucoup, notre site utilise les cookies

On aimerait vous accompagner pendant votre visite. En poursuivant, vous acceptez l'utilisation des cookies par ce site, afin de vous proposer des contenus adaptés et réaliser des statistiques !

Paramétrer

Cookies fonctionnelsCes cookies sont indispensables à la navigation sur le site, pour vous garantir un fonctionnement optimal. Ils ne peuvent donc pas être désactivés.

Statistiques de visitesPour améliorer votre expérience, on a besoin de savoir ce qui vous intéresse !
Les données récoltées sont anonymisées.

?

Google Analytics

Annonces personnaliséesOn garde le contact ? Ces cookies nous permettent de vous proposer des contenus publicitaires adaptés à vos centres d'intérêts.

?

Google Ads

?

Facebook Pixel

?

Youtube

En savoir plus

Nous utilisons des cookies pour nous permettre de mieux comprendre comment le site est utilisé. En continuant à utiliser ce site, vous acceptez notre politique de confidentialité. En savoir plus