• Accueil
  • Trouver un professionnel agréé
  • Nos évènements
  • Nos Formations
  • Nos partenaires
  • Assistance juridique
  • Bourse de l'emploi
Fnaim-44
ADHÉRER À LA FNAIM 44 ACCÈS ADHÉRENT
  1. Accueil
  2. Reze
  3. Location
  4. Local Commercial
< Retour

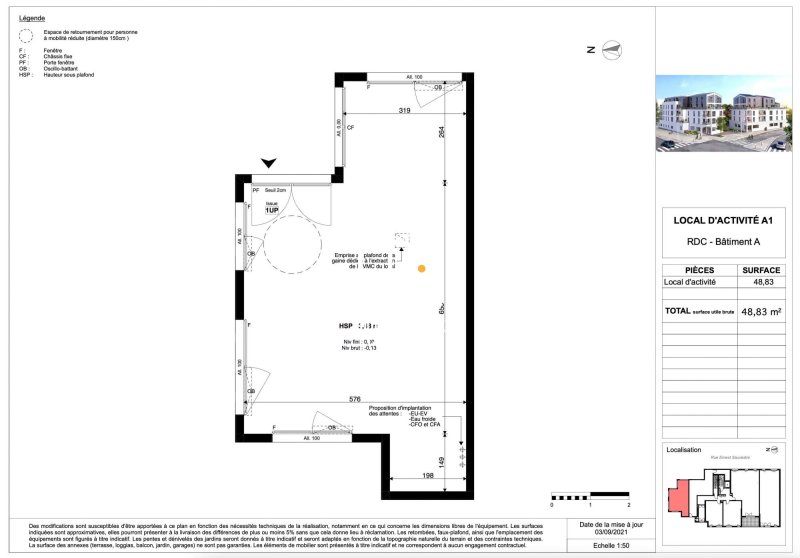
Local commercial

Reze - 44400

961 €
Descriptif du bien
NANTES SUD Commune de REZE, Quartier RAGON A louer local commercial d'angle d'une surface de 48 m² environ A proximité de la ZONE COMMERCIALE LECERC OCEANE Sur un des axes majeurs reliant PORTE DE REZE à PONT ROUSSEAU La cellule commerciale offre une belle visibilité sur un rond point à fort flux routier Facilité d'accès en transports NAOLIB avec le CHRONOBUS C4 et les BUS 30, 33 Disponible 1ER T 2025 Le local est livré brut de béton, huisserie posée, réseaux en attente. Une place de parking aérienne privative Conditions : Bail commercial 3/6/9 notarié Loyer annuel 11 524 € HT/HC Dépôt de garantie 3 mois de loyer Taxe foncière à charge locataire A la charge du preneur Frais de rédaction du bail notarié 2 500 € HT Honoraires de commercialisation 25% HT du loyer annuel HT/HC. Frais d'état des lieux Pour toutes informations complémentaires contactez l'agence au 02 55 07 86 35. Honoraires de 2 881 € HT à la charge du locataire. Dépôt de garantie 2 881 €. Non soumis au DPE. Les informations sur les risques auxquels ce bien est exposé sont disponibles sur le site Géorisques : georisques.gouv.fr. Votre conseiller LOCAUX-BUREAUX-COMMERCES : Nicolas FOULON Agent commercial (Entreprise individuelle) RSAC ADC 4401 2025 000 000 873 RCP RCACO-20-016231 GALIAN SMA BTP. LOCAUX-BUREAUX-COMMERCES 02 55 07 86 35
Détails du bien
  • Code postal 44400

Diagnostic de
performances énergétiques

DPE
GES
Ce bien est proposé par
LOCAUX BUREAUX COMMERCES
LOCAUX BUREAUX COMMERCES
Créer mon dossier de location Avec
Voir les biens de l'agence
2 Rue Robert Schuman
44400 Reze
02 55 07 86 35
accueil@groupelbc.com
/www.locaux-bureaux-commerces.fr/
Nos outils
Nous contacter pour ce bien

* champs obligatoire

Les informations communiquées sont destinées à "Fnaim Loire Atlantique" éditrice de ce site. Vous bénéficiez d'un droit d'accès, de modification, de rectification et de suppression de vos données personnelles (Loi n°2004-575 du 21 juin 2004 pour la confiance dans l'économie numérique). Pour les exercer, adressez vous à l’adresse de l’Editeur.

Partager ce
bien

Partager ce
bien

* champs obligatoire

Les informations communiquées sont destinées à "Fnaim Loire Atlantique" éditrice de ce site. Vous bénéficiez d'un droit d'accès, de modification, de rectification et de suppression de vos données personnelles (Loi n°2004-575 du 21 juin 2004 pour la confiance dans l'économie numérique). Pour les exercer, adressez vous à l’adresse de l’Editeur.

Calculatrice financière
Mensualités :

* Champs obligatoires

Ces biens
peuvent vous intéresser

  • Location
    Local commercial
    44000 nantes Centre
  • Vente
    Local commercial
    44120 vertou
    509 000 €
  • Vente
    Local commercial
    44120 vertou
    728 000 €
FNAIM

FNAIM Loire Atlantique 3 bis rue Lorette de la Refoulais - 44000 NANTES 02.51.84.22.77 contact@fnaim44.fr

FNAIM 44 © 2026 | Tous droits réservés |

  • Plan du site
  • Mentions légales
  • Partenaires
  • Admin
  • Contact
Réalisé par

Comme beaucoup, notre site utilise les cookies

On aimerait vous accompagner pendant votre visite. En poursuivant, vous acceptez l'utilisation des cookies par ce site, afin de vous proposer des contenus adaptés et réaliser des statistiques !

Paramétrer

Cookies fonctionnelsCes cookies sont indispensables à la navigation sur le site, pour vous garantir un fonctionnement optimal. Ils ne peuvent donc pas être désactivés.

Statistiques de visitesPour améliorer votre expérience, on a besoin de savoir ce qui vous intéresse !
Les données récoltées sont anonymisées.

?

Google Analytics

Annonces personnaliséesOn garde le contact ? Ces cookies nous permettent de vous proposer des contenus publicitaires adaptés à vos centres d'intérêts.

?

Google Ads

?

Facebook Pixel

?

Youtube

En savoir plus

Nous utilisons des cookies pour nous permettre de mieux comprendre comment le site est utilisé. En continuant à utiliser ce site, vous acceptez notre politique de confidentialité. En savoir plus