• Accueil
  • Trouver un professionnel agréé
  • Nos évènements
  • Nos Formations
  • Nos partenaires
  • Assistance juridique
  • Bourse de l'emploi
Fnaim-44
ADHÉRER À LA FNAIM 44 ACCÈS ADHÉRENT
  1. Accueil
  2. Nantes Est
  3. Location
  4. Appartement
  5. 2 Pièces - 42m²
< Retour

Appartement
2 Pièces 42 m²

Nantes Est - 44300

590 €
(+140 € de charges)
Descriptif du bien
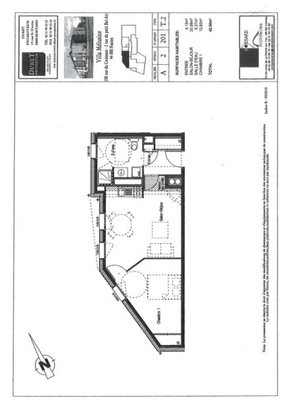
NANTES - CROISSANT - Référence #3647 Rue du Petit Bel Air - Dans une résidence de 2012, appartement en très bon état de type 2 de 42.50 m² situé au 2ème étage avec ascenseur et comprenant : une entrée avec placard, une pièce de vie avec cuisine aménagée et équipée (table de cuisson vitrocéramique et hotte et réfrigérateur), une chambre avec placard de 12.92 m², une salle d'eau avec douche, meuble vasque et WC. Une place de parking au sous-sol complète ce bien. Chauffage individuel gaz au sol. Consommation annuelle = environ 200 € pour la dernière locataire Les charges comprennent : parties communes, ascenseur, eau froide Disponible de suite. Bien soumis aux conditions de ressources liées à l'Assurance Loyers Impayés (ALI) et au dispositif fiscal SCELLIER Les informations sur les risques auxquels ce bien est exposé sont disponibles sur le site Géorisques : www.georisques.gouv.fr
Détails du bien
  • Superficie (m²) 42
  • Code postal 44300
  • Nombre de chambre(s) 1
  • Nombre de pièces 2
  • Charges 140 €

Diagnostic de
performances énergétiques

DPE
GES
Ce bien est proposé par
BRAS IMMOBILIER
BRAS IMMOBILIER
Créer mon dossier de location Avec
Voir les biens de l'agence
50, Route De Vannes
44100 Nantes Ouest
02 4 0 20 3 3 06
accueil@bras-immobilier.fr
/www.bras-immobilier.fr
Nos outils
Nous contacter pour ce bien

* champs obligatoire

Les informations communiquées sont destinées à "Fnaim Loire Atlantique" éditrice de ce site. Vous bénéficiez d'un droit d'accès, de modification, de rectification et de suppression de vos données personnelles (Loi n°2004-575 du 21 juin 2004 pour la confiance dans l'économie numérique). Pour les exercer, adressez vous à l’adresse de l’Editeur.

Partager ce
bien

Partager ce
bien

* champs obligatoire

Les informations communiquées sont destinées à "Fnaim Loire Atlantique" éditrice de ce site. Vous bénéficiez d'un droit d'accès, de modification, de rectification et de suppression de vos données personnelles (Loi n°2004-575 du 21 juin 2004 pour la confiance dans l'économie numérique). Pour les exercer, adressez vous à l’adresse de l’Editeur.

Calculatrice financière
Mensualités :

* Champs obligatoires

Ces biens
peuvent vous intéresser

  • Location
    Appartement 47m²
    44000 nantes Centre
    671 €
  • Vente
    Appartement 63m²
    44300 nantes Est
  • Vente
    Appartement 67m²
    44300 nantes Est
FNAIM

FNAIM Loire Atlantique 3 bis rue Lorette de la Refoulais - 44000 NANTES 02.51.84.22.77 contact@fnaim44.fr

FNAIM 44 © 2026 | Tous droits réservés |

  • Plan du site
  • Mentions légales
  • Partenaires
  • Admin
  • Contact
Réalisé par

Comme beaucoup, notre site utilise les cookies

On aimerait vous accompagner pendant votre visite. En poursuivant, vous acceptez l'utilisation des cookies par ce site, afin de vous proposer des contenus adaptés et réaliser des statistiques !

Paramétrer

Cookies fonctionnelsCes cookies sont indispensables à la navigation sur le site, pour vous garantir un fonctionnement optimal. Ils ne peuvent donc pas être désactivés.

Statistiques de visitesPour améliorer votre expérience, on a besoin de savoir ce qui vous intéresse !
Les données récoltées sont anonymisées.

?

Google Analytics

Annonces personnaliséesOn garde le contact ? Ces cookies nous permettent de vous proposer des contenus publicitaires adaptés à vos centres d'intérêts.

?

Google Ads

?

Facebook Pixel

?

Youtube

En savoir plus

Nous utilisons des cookies pour nous permettre de mieux comprendre comment le site est utilisé. En continuant à utiliser ce site, vous acceptez notre politique de confidentialité. En savoir plus