• Accueil
  • Trouver un professionnel agréé
  • Nos évènements
  • Nos Formations
  • Nos partenaires
  • Assistance juridique
  • Bourse de l'emploi
Fnaim-44
ADHÉRER À LA FNAIM 44 ACCÈS ADHÉRENT
  1. Accueil
  2. St Herblain
  3. Location
  4. Appartement
  5. 3 Pièces - 64m²
< Retour

Appartement
3 Pièces 64 m²

St Herblain - 44800

870 €
(+300 € de charges)
Descriptif du bien
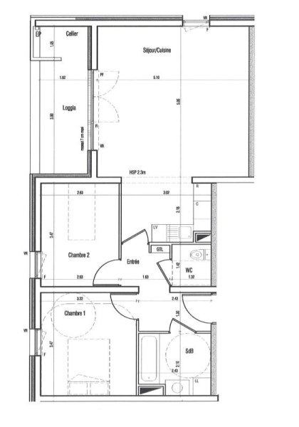
SAINT HERBLAIN, QUARTIER MARCEL PAUL, dans une résidence récente BBC, proche des commerces, du Tramway L3 arrêt Marcel Paul et du périphérique, appartement T3 de 64.70m² comprenant une entrée, un séjour donnant sur une loggia de 6.2 m², une cuisine ouverte aménagée équipée de plaques vitrocéramiques 4 feux et d'une hotte, deux chambres, une salle de bain, un wc ainsi qu'un cellier de 1.7m². Le logement bénéficie d'une place de parking couvert. Eau chaude, eau froide et chauffage compris dans la provision sur charges. CONDITIONS DE RESSOURCES : LOI PINEL. Ce bien est soumis à l'assurance Garantie Loyers Impayés. Les informations sur les risques auxquels ce bien est exposé sont disponibles sur le site Géorisques : www.georisques.gouv.fr
Détails du bien
  • Superficie (m²) 64
  • Code postal 44800
  • Nombre de chambre(s) 2
  • Nombre de pièces 3
  • Nb de salle de bain 1
  • Charges 300 €

Diagnostic de
performances énergétiques

DPE
GES
Ce bien est proposé par
THIERRY IMMOBILIER
THIERRY IMMOBILIER
Créer mon dossier de location Avec
Voir les biens de l'agence
10 Rue Sarrazin
44000 Nantes Centre
02 4 0 47 7 8 51
cabinet@thierry-immobilier.fr
WWW.THIERRY-IMMOBILIER.FR
Nos outils
Nous contacter pour ce bien

* champs obligatoire

Les informations communiquées sont destinées à "Fnaim Loire Atlantique" éditrice de ce site. Vous bénéficiez d'un droit d'accès, de modification, de rectification et de suppression de vos données personnelles (Loi n°2004-575 du 21 juin 2004 pour la confiance dans l'économie numérique). Pour les exercer, adressez vous à l’adresse de l’Editeur.

Partager ce
bien

Partager ce
bien

* champs obligatoire

Les informations communiquées sont destinées à "Fnaim Loire Atlantique" éditrice de ce site. Vous bénéficiez d'un droit d'accès, de modification, de rectification et de suppression de vos données personnelles (Loi n°2004-575 du 21 juin 2004 pour la confiance dans l'économie numérique). Pour les exercer, adressez vous à l’adresse de l’Editeur.

Calculatrice financière
Mensualités :

* Champs obligatoires

Ces biens
peuvent vous intéresser

  • Location
    Appartement 47m²
    44000 nantes Centre
    671 €
  • Vente
    Appartement 63m²
    44300 nantes Est
  • Vente
    Appartement 67m²
    44300 nantes Est
FNAIM

FNAIM Loire Atlantique 3 bis rue Lorette de la Refoulais - 44000 NANTES 02.51.84.22.77 contact@fnaim44.fr

FNAIM 44 © 2026 | Tous droits réservés |

  • Plan du site
  • Mentions légales
  • Partenaires
  • Admin
  • Contact
Réalisé par

Comme beaucoup, notre site utilise les cookies

On aimerait vous accompagner pendant votre visite. En poursuivant, vous acceptez l'utilisation des cookies par ce site, afin de vous proposer des contenus adaptés et réaliser des statistiques !

Paramétrer

Cookies fonctionnelsCes cookies sont indispensables à la navigation sur le site, pour vous garantir un fonctionnement optimal. Ils ne peuvent donc pas être désactivés.

Statistiques de visitesPour améliorer votre expérience, on a besoin de savoir ce qui vous intéresse !
Les données récoltées sont anonymisées.

?

Google Analytics

Annonces personnaliséesOn garde le contact ? Ces cookies nous permettent de vous proposer des contenus publicitaires adaptés à vos centres d'intérêts.

?

Google Ads

?

Facebook Pixel

?

Youtube

En savoir plus

Nous utilisons des cookies pour nous permettre de mieux comprendre comment le site est utilisé. En continuant à utiliser ce site, vous acceptez notre politique de confidentialité. En savoir plus