• Accueil
  • Trouver un professionnel agréé
  • Nos évènements
  • Nos Formations
  • Nos partenaires
  • Assistance juridique
  • Bourse de l'emploi
Fnaim-44
ADHÉRER À LA FNAIM 44 ACCÈS ADHÉRENT
  1. Accueil
  2. Nantes Centre
  3. Location
  4. Appartement
  5. 3 Pièces - 75m²
< Retour

Appartement
3 Pièces 75 m²

Nantes Centre - 44000

1 090 €
(+180 € de charges)
Descriptif du bien
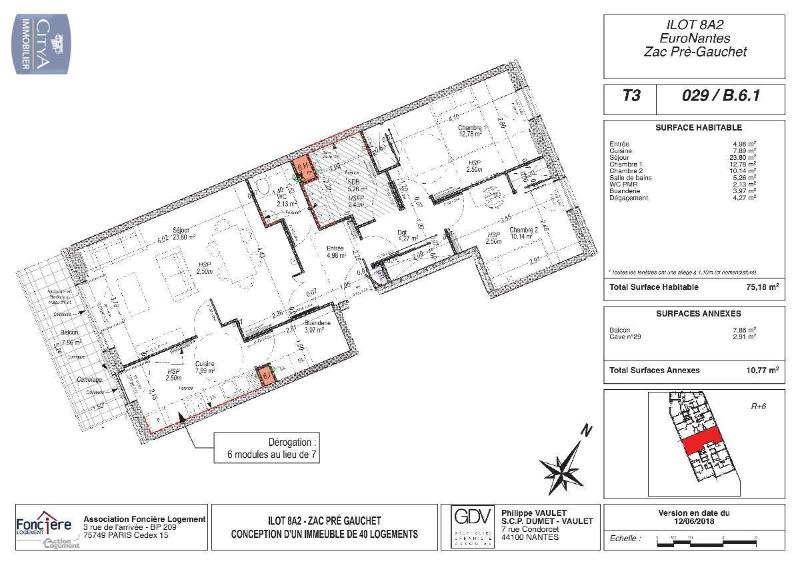
A LOUER - APPARTEMENT 3 PIÈCES NEUF - GARE SUD - "PAS DE FRAIS D'AGENCE" Venez découvrir cet appartement de 3 pièces d'une superficie de 75,18 m², localisé à NANTES. Il bénéficie d'une exposition sud-ouest. Il est situé dans un immeuble de bon standing équipé d'un ascenseur. Cet appartement est composé d'une entrée avec placard de rangement, d'un séjour de 24 m², d'une cuisine simple et séparée, de deux chambres et une salle de bains. Un balcon de 7,73 m² offre un espace supplémentaire à l'appartement. Une cave et une place de parking sont mises à disposition avec le logement. L'appartement est équipé d'un chauffage et d'une production d'eau chaude collectif et l'eau froide est individuelle. Le bien se situe dans la commune de Nantes. Il y a des écoles de tous niveaux à moins de 10 minutes de l'appartement. L'aéroport Nantes-Atlantique est situé à moins de 9 km. Le cinéma d'art et d'essai Le Cinématographe vous attend non loin du bien pour vos loisirs, ainsi qu'un théâtre et un port de plaisance. On trouve aussi un grand choix de restaurants et deux bureaux de poste. Loyer de 1 089,78 euros par mois charges comprises dont 180,00 euros par mois de provision pour charges (soumis à la régularisation annuelle). Soit avec Assurance Habitation et Assistance* ( 24.00 euros ) : 1 113,78 euros. Vous pouvez consulter les barèmes d'honoraires à l'adresse suivante : https://www.citya.com/agences-immobilieres/nantes-44109/143#bareme-location Montant estimé des dépenses annuelles d'énergie pour un usage standard : entre 525 et 711 euros. Prix moyens des énergies indexés en 2021. Les informations sur les risques auxquels ce bien est exposé sont disponibles sur le site Géorisques : https://www.georisques.gouv.fr. *Service facultatif. Contribution annuelle "attentats" non comprise. Voir conditions en agence.
Détails du bien
  • Superficie (m²) 75
  • Code postal 44000
  • Nombre de chambre(s) 2
  • Nombre de pièces 3
  • Nb de salle de bain 1
  • Charges 180 €

Diagnostic de
performances énergétiques

DPE
GES
Ce bien est proposé par
CITYA NANTES CITYA MELLINET
CITYA NANTES CITYA MELLINET
Voir les biens de l'agence
36, Rue Alfred Riom
44100 Nantes Ouest
02 40 48 75 40
jralbouy@citya.com
www.citya.com
Nos outils
Nous contacter pour ce bien

* champs obligatoire

Les informations communiquées sont destinées à "Fnaim Loire Atlantique" éditrice de ce site. Vous bénéficiez d'un droit d'accès, de modification, de rectification et de suppression de vos données personnelles (Loi n°2004-575 du 21 juin 2004 pour la confiance dans l'économie numérique). Pour les exercer, adressez vous à l’adresse de l’Editeur.

Partager ce
bien

Partager ce
bien

* champs obligatoire

Les informations communiquées sont destinées à "Fnaim Loire Atlantique" éditrice de ce site. Vous bénéficiez d'un droit d'accès, de modification, de rectification et de suppression de vos données personnelles (Loi n°2004-575 du 21 juin 2004 pour la confiance dans l'économie numérique). Pour les exercer, adressez vous à l’adresse de l’Editeur.

Calculatrice financière
Mensualités :

* Champs obligatoires

Ces biens
peuvent vous intéresser

  • Vente
    Appartement 82m²
    44120 vertou
    333 000 €
  • Vente
    Appartement 54m²
    44120 vertou
    269 000 €
  • Vente
    Appartement 64m²
    44120 vertou
    179 000 €
FNAIM

FNAIM Loire Atlantique 3 bis rue Lorette de la Refoulais - 44000 NANTES 02.51.84.22.77 contact@fnaim44.fr

FNAIM 44 © 2026 | Tous droits réservés |

  • Plan du site
  • Mentions légales
  • Partenaires
  • Admin
  • Contact
Réalisé par

Comme beaucoup, notre site utilise les cookies

On aimerait vous accompagner pendant votre visite. En poursuivant, vous acceptez l'utilisation des cookies par ce site, afin de vous proposer des contenus adaptés et réaliser des statistiques !

Paramétrer

Cookies fonctionnelsCes cookies sont indispensables à la navigation sur le site, pour vous garantir un fonctionnement optimal. Ils ne peuvent donc pas être désactivés.

Statistiques de visitesPour améliorer votre expérience, on a besoin de savoir ce qui vous intéresse !
Les données récoltées sont anonymisées.

?

Google Analytics

Annonces personnaliséesOn garde le contact ? Ces cookies nous permettent de vous proposer des contenus publicitaires adaptés à vos centres d'intérêts.

?

Google Ads

?

Facebook Pixel

?

Youtube

En savoir plus

Nous utilisons des cookies pour nous permettre de mieux comprendre comment le site est utilisé. En continuant à utiliser ce site, vous acceptez notre politique de confidentialité. En savoir plus