• Accueil
  • Trouver un professionnel agréé
  • Nos évènements
  • Nos Formations
  • Nos partenaires
  • Assistance juridique
  • Bourse de l'emploi
Fnaim-44
ADHÉRER À LA FNAIM 44 ACCÈS ADHÉRENT
  1. Accueil
  2. Nantes Centre
  3. Location
  4. Appartement
  5. 2 Pièces - 50m²
< Retour

Appartement
2 Pièces 50 m²

Nantes Centre - 44000

1 343 €
(+180 € de charges)
Descriptif du bien
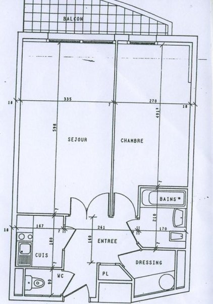
Quartier Hauts Pavés, situé dans résidence de services pour personnes agées, T2 comprenant une entrée avec placard, un séjour de 20.03 m² donnant sur balcon de 5.20 m², une cuisine aménagée et équipée (plaque, micro-onde et hotte), une chambre, dressing, sdb, wc séparés. Un garage et une cave complètent ce bien. Proche tram et commerces. Logement soumis à la Garantie des Loyers Impayés (GLI). Les informations sur les risques auxquels ce bien est exposé sont disponibles sur le site Géorisques: www.georisques.gouv.fr.
Détails du bien
  • Superficie (m²) 50
  • Code postal 44000
  • Nombre de chambre(s) 1
  • Nombre de pièces 2
  • Nb de salle de bain 1
  • Charges 180 €

Diagnostic de
performances énergétiques

DPE
GES
Ce bien est proposé par
THIERRY IMMOBILIER
THIERRY IMMOBILIER
Créer mon dossier de location Avec
Voir les biens de l'agence
10 Rue Sarrazin
44000 Nantes Centre
02 4 0 47 7 8 51
cabinet@thierry-immobilier.fr
WWW.THIERRY-IMMOBILIER.FR
Nos outils
Nous contacter pour ce bien

* champs obligatoire

Les informations communiquées sont destinées à "Fnaim Loire Atlantique" éditrice de ce site. Vous bénéficiez d'un droit d'accès, de modification, de rectification et de suppression de vos données personnelles (Loi n°2004-575 du 21 juin 2004 pour la confiance dans l'économie numérique). Pour les exercer, adressez vous à l’adresse de l’Editeur.

Partager ce
bien

Partager ce
bien

* champs obligatoire

Les informations communiquées sont destinées à "Fnaim Loire Atlantique" éditrice de ce site. Vous bénéficiez d'un droit d'accès, de modification, de rectification et de suppression de vos données personnelles (Loi n°2004-575 du 21 juin 2004 pour la confiance dans l'économie numérique). Pour les exercer, adressez vous à l’adresse de l’Editeur.

Calculatrice financière
Mensualités :

* Champs obligatoires

Ces biens
peuvent vous intéresser

  • Vente
    Appartement 22m²
    44120 vertou
    79 900 €
  • Vente
    Appartement 23m²
    44120 vertou
    82 000 €
  • Vente
    Appartement 37m²
    44120 vertou
    257 000 €
FNAIM

FNAIM Loire Atlantique 3 bis rue Lorette de la Refoulais - 44000 NANTES 02.51.84.22.77 contact@fnaim44.fr

FNAIM 44 © 2026 | Tous droits réservés |

  • Plan du site
  • Mentions légales
  • Partenaires
  • Admin
  • Contact
Réalisé par

Comme beaucoup, notre site utilise les cookies

On aimerait vous accompagner pendant votre visite. En poursuivant, vous acceptez l'utilisation des cookies par ce site, afin de vous proposer des contenus adaptés et réaliser des statistiques !

Paramétrer

Cookies fonctionnelsCes cookies sont indispensables à la navigation sur le site, pour vous garantir un fonctionnement optimal. Ils ne peuvent donc pas être désactivés.

Statistiques de visitesPour améliorer votre expérience, on a besoin de savoir ce qui vous intéresse !
Les données récoltées sont anonymisées.

?

Google Analytics

Annonces personnaliséesOn garde le contact ? Ces cookies nous permettent de vous proposer des contenus publicitaires adaptés à vos centres d'intérêts.

?

Google Ads

?

Facebook Pixel

?

Youtube

En savoir plus

Nous utilisons des cookies pour nous permettre de mieux comprendre comment le site est utilisé. En continuant à utiliser ce site, vous acceptez notre politique de confidentialité. En savoir plus