• Accueil
  • Trouver un professionnel agréé
  • Nos évènements
  • Nos Formations
  • Nos partenaires
  • Assistance juridique
  • Bourse de l'emploi
Fnaim-44
ADHÉRER À LA FNAIM 44 ACCÈS ADHÉRENT
  1. Accueil
  2. Nantes Centre
  3. Location
  4. Appartement
  5. 2 Pièces - 54m²
< Retour

Appartement
2 Pièces 54 m²

Nantes Centre - 44000

782 €
(+110 € de charges)
Descriptif du bien
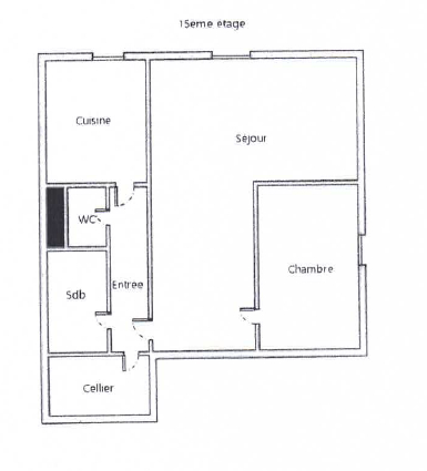
NANTES 3 boulevard Alexandre Millerand Situé dans une résidence bien entretenue construite en 1974, au 15ème étage avec ascenseur, lumineux appartement de deux pièces avec vue sur la Loire comprenant une entrée, un salon aménagé avec placard, une cuisine indépendante, une chambre, une salle de bains, un wc indépendant ainsi qu'un cellier Honoraires à la charge du locataire : 640 Euro TTC dont 160 Euro pour l'état des lieux Dépôt de garantie : 672 Euro Montant des charges : 110 Euro/mois (chauffage, eau chaude, eau froide, teom, gardien) Modalité de récupération des charges locatives : provision mensuelle avec régularisation annuelle Dossier soumis à l'Assurance Loyers Impayés
Détails du bien
  • Superficie (m²) 54
  • Code postal 44000
  • Nombre de chambre(s) 1
  • Nombre de pièces 2
  • Nb de salle de bain 1
  • Charges 110 €

Diagnostic de
performances énergétiques

DPE
GES
Ce bien est proposé par
C&M IMMOBILIER
C&M IMMOBILIER
Créer mon dossier de location Avec
Voir les biens de l'agence
4 Bis, Rue Victor Hugo
44400 Reze
02 51 82 22 22
contact@cm-immo.fr
www.cm-immo.fr
Nos outils
Nous contacter pour ce bien

* champs obligatoire

Les informations communiquées sont destinées à "Fnaim Loire Atlantique" éditrice de ce site. Vous bénéficiez d'un droit d'accès, de modification, de rectification et de suppression de vos données personnelles (Loi n°2004-575 du 21 juin 2004 pour la confiance dans l'économie numérique). Pour les exercer, adressez vous à l’adresse de l’Editeur.

Partager ce
bien

Partager ce
bien

* champs obligatoire

Les informations communiquées sont destinées à "Fnaim Loire Atlantique" éditrice de ce site. Vous bénéficiez d'un droit d'accès, de modification, de rectification et de suppression de vos données personnelles (Loi n°2004-575 du 21 juin 2004 pour la confiance dans l'économie numérique). Pour les exercer, adressez vous à l’adresse de l’Editeur.

Calculatrice financière
Mensualités :

* Champs obligatoires

Ces biens
peuvent vous intéresser

  • Vente
    Appartement 22m²
    44120 vertou
    79 900 €
  • Vente
    Appartement 23m²
    44120 vertou
    82 000 €
  • Vente
    Appartement 37m²
    44120 vertou
    257 000 €
FNAIM

FNAIM Loire Atlantique 3 bis rue Lorette de la Refoulais - 44000 NANTES 02.51.84.22.77 contact@fnaim44.fr

FNAIM 44 © 2026 | Tous droits réservés |

  • Plan du site
  • Mentions légales
  • Partenaires
  • Admin
  • Contact
Réalisé par

Comme beaucoup, notre site utilise les cookies

On aimerait vous accompagner pendant votre visite. En poursuivant, vous acceptez l'utilisation des cookies par ce site, afin de vous proposer des contenus adaptés et réaliser des statistiques !

Paramétrer

Cookies fonctionnelsCes cookies sont indispensables à la navigation sur le site, pour vous garantir un fonctionnement optimal. Ils ne peuvent donc pas être désactivés.

Statistiques de visitesPour améliorer votre expérience, on a besoin de savoir ce qui vous intéresse !
Les données récoltées sont anonymisées.

?

Google Analytics

Annonces personnaliséesOn garde le contact ? Ces cookies nous permettent de vous proposer des contenus publicitaires adaptés à vos centres d'intérêts.

?

Google Ads

?

Facebook Pixel

?

Youtube

En savoir plus

Nous utilisons des cookies pour nous permettre de mieux comprendre comment le site est utilisé. En continuant à utiliser ce site, vous acceptez notre politique de confidentialité. En savoir plus