• Accueil
  • Trouver un professionnel agréé
  • Nos évènements
  • Nos Formations
  • Nos partenaires
  • Assistance juridique
  • Bourse de l'emploi
Fnaim-44
ADHÉRER À LA FNAIM 44 ACCÈS ADHÉRENT
  1. Accueil
  2. Nantes Centre
  3. Location
  4. Appartement
  5. 2 Pièces - 40m²
< Retour

Appartement
2 Pièces 40 m²

Nantes Centre - 44000

725 €
(+55 € de charges)
Descriptif du bien
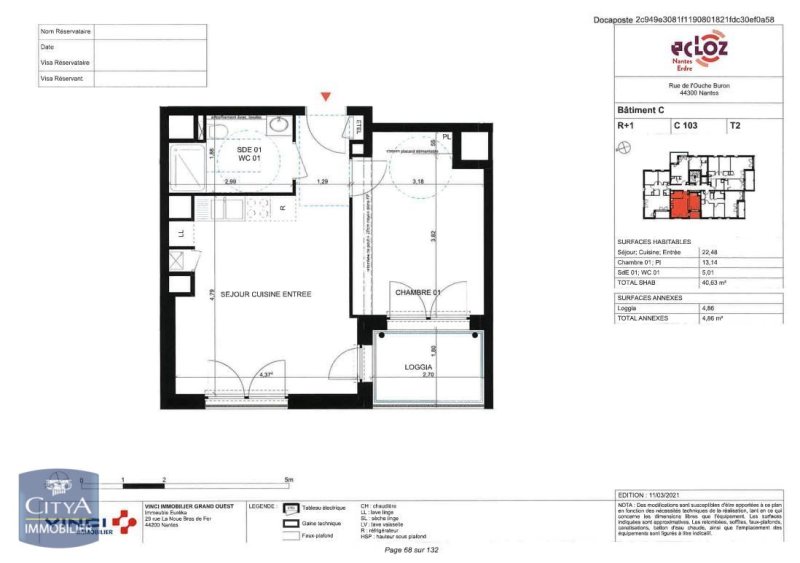
À LOUER - NANTES BEAUJOIRE Appartement neuf T2 situé à Nantes, dans le quartier dynamique de la Beaujoire. Ce bien immobilier offre une superficie de 40 m², avec un espace de vie agréable de 22,48 m², idéal pour un couple ou une personne seule. L'appartement se trouve au premier étage d'un immeuble moderne, accessible par un ascenseur, ce qui facilite les déplacements au quotidien. L'appartement comprend une chambre spacieuse, ainsi qu'une salle d'eau équipée d'une douche. La cuisine est entièrement équipée, permettant de préparer vos repas dans un cadre fonctionnel et convivial. De plus, vous pourrez profiter d'une loggia orienté à l'ouest, parfait pour savourer vos moments de détente en fin de journée. Le chauffage est individuel, garantissant un confort optimal tout au long de l'année. Bien que l'appartement ne soit pas meublé, cela vous offre la liberté de personnaliser l'espace selon vos goûts et vos besoins. Situé dans un environnement résidentiel, cet appartement bénéficie de la proximité de plusieurs commodités. À moins de 1500 mètres, vous trouverez plusieurs supermarchés, dont Carrefour et Carrefour City, facilitant vos courses quotidiennes. Pour les familles, des écoles élémentaires et maternelles se situent à moins de 1000 mètres, ainsi que des pharmacies à proximité pour vos besoins de santé. Les amateurs de boulangerie apprécieront la présence de plusieurs établissements à moins de 1000 mètres, tels que "Pains et Gourmandises". De plus, pour les étudiants ou les professionnels, plusieurs campus universitaires sont accessibles dans un rayon de 6000 mètres. Ce bien est idéal pour ceux qui recherchent un cadre de vie agréable, alliant confort moderne et proximité des commodités essentielles. N'hésitez pas à nous contacter pour plus d'informations ou pour organiser une visite. Le bien est soumis au statut de la copropriété. Loyer de 725,00 euros par mois charges comprises dont 55,00 euros par mois de provision pour charges (soumis à la régularisation annuelle). Soit avec Assurance Habitation et Assistance* ( 21.00 euros ) : 746,00 euros. Les honoraires charge locataire sont de 533,07 euros ( soit 13,12 euros/m² ) dont 123,11 euros pour état des lieux ( soit 3,03 euros/m² ). Vous pouvez consulter les barèmes d'honoraires à l'adresse suivante : https://www.citya.com/agences-immobilieres/nantes-44109/143#bareme-location Montant estimé des dépenses annuelles d'énergie pour un usage standard : entre 295 et 399 euros. Prix moyens des énergies indexés en 2023. Les informations sur les risques auxquels ce bien est exposé sont disponibles sur le site Géorisques : https://www.georisques.gouv.fr. *Service facultatif. Contribution annuelle "attentats" non comprise. Voir conditions en agence.
Détails du bien
  • Superficie (m²) 40
  • Code postal 44000
  • Nombre de chambre(s) 1
  • Nombre de pièces 2
  • Charges 55 €

Diagnostic de
performances énergétiques

DPE
GES
Ce bien est proposé par
CITYA NANTES CITYA MELLINET
CITYA NANTES CITYA MELLINET
Voir les biens de l'agence
36, Rue Alfred Riom
44100 Nantes Ouest
02 40 48 75 40
jralbouy@citya.com
www.citya.com
Nos outils
Nous contacter pour ce bien

* champs obligatoire

Les informations communiquées sont destinées à "Fnaim Loire Atlantique" éditrice de ce site. Vous bénéficiez d'un droit d'accès, de modification, de rectification et de suppression de vos données personnelles (Loi n°2004-575 du 21 juin 2004 pour la confiance dans l'économie numérique). Pour les exercer, adressez vous à l’adresse de l’Editeur.

Partager ce
bien

Partager ce
bien

* champs obligatoire

Les informations communiquées sont destinées à "Fnaim Loire Atlantique" éditrice de ce site. Vous bénéficiez d'un droit d'accès, de modification, de rectification et de suppression de vos données personnelles (Loi n°2004-575 du 21 juin 2004 pour la confiance dans l'économie numérique). Pour les exercer, adressez vous à l’adresse de l’Editeur.

Calculatrice financière
Mensualités :

* Champs obligatoires

Ces biens
peuvent vous intéresser

  • Vente
    Appartement 30m²
    44120 vertou
    176 500 €
  • Vente
    Appartement 70m²
    44120 vertou
    229 900 €
  • Vente
    Appartement 45m²
    44120 vertou
    129 900 €
FNAIM

FNAIM Loire Atlantique 3 bis rue Lorette de la Refoulais - 44000 NANTES 02.51.84.22.77 contact@fnaim44.fr

FNAIM 44 © 2026 | Tous droits réservés |

  • Plan du site
  • Mentions légales
  • Partenaires
  • Admin
  • Contact
Réalisé par

Comme beaucoup, notre site utilise les cookies

On aimerait vous accompagner pendant votre visite. En poursuivant, vous acceptez l'utilisation des cookies par ce site, afin de vous proposer des contenus adaptés et réaliser des statistiques !

Paramétrer

Cookies fonctionnelsCes cookies sont indispensables à la navigation sur le site, pour vous garantir un fonctionnement optimal. Ils ne peuvent donc pas être désactivés.

Statistiques de visitesPour améliorer votre expérience, on a besoin de savoir ce qui vous intéresse !
Les données récoltées sont anonymisées.

?

Google Analytics

Annonces personnaliséesOn garde le contact ? Ces cookies nous permettent de vous proposer des contenus publicitaires adaptés à vos centres d'intérêts.

?

Google Ads

?

Facebook Pixel

?

Youtube

En savoir plus

Nous utilisons des cookies pour nous permettre de mieux comprendre comment le site est utilisé. En continuant à utiliser ce site, vous acceptez notre politique de confidentialité. En savoir plus